Hawaii's most accurate home valuation tool.
Start Tracking your home's value today!
Start Tracking your home's value today!
Are you interested in a real estate career in Hawaii?
Condo in Waiau - Pearl City Oahu
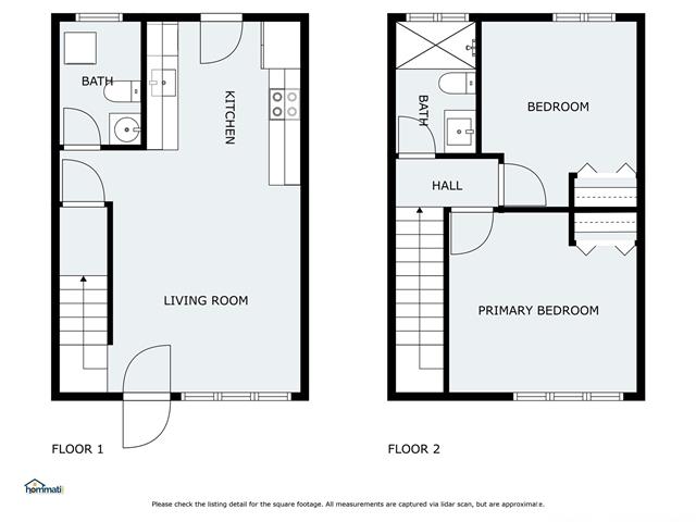
Don’t miss this opportunity to own a beautifully upgraded 2-bedroom, 1.5-bath townhome in the heart of Pearl City! This move-in-ready home features a stylishly renovated kitchen with stainless steel appliances, quartz countertops, and modern cabinetry, paired with durable vinyl plank flooring throughout for a clean, contemporary feel. Enjoy the convenience of a reserved parking stall located just steps from your front door. Perfectly positioned near shopping, dining, parks, and everyday essentials, Pearl City Shopping Center (Don Quijote, Daiso & more) is just minutes away. Pearl Harbor Naval Base and major freeway access are also nearby, making commuting simple and efficient. Whether you’re a first-time buyer looking for a smart start or an investor seeking strong rental potential in a desirable location, this property checks all the boxes. Well-priced, well-located, and move-in ready — homes like this don’t stay on the market long. Schedule your showing today before it’s gone!
98-1280 Hoohiki Place 86 Pearl City 96782 is listed Courtesy of Coldwell Banker Realty (808) 262-3104
Congratulations, you have access to Hawaii's most comprehensive Real Estate Search! Please help us to better serve you by answering these optional questions.
This email is already registered. Click the button below and we'll send you a link to reset your password.
You have already registered using your FB account.
Check your inbox for an email from brokersmls@locationshawaii.com. It contains a link to reset your password.
The agent who gave you access to this website is no longer with Locations LLC.
Due to local MLS regulations, you will need to re-register if you would like to continue your access.
We will pre-fill the registration form with information in our files. Once you click Register you can either select a new agent or one will be assigned for you.
Sorry for the inconvenience, Locations LLC.
Request an appointment to view this property by completing the information below. Please note your appointment is not confirmed until an agent calls you.
Disclaimer: The properties we may show you may be Locations LLC listings or listings of other brokerage firms. Professional protocol requires agent to set up an appointment with the listings agent to show a property. Locations, LLC may only show properties marked "Active" and "ACS".
Keep your eye on this property! Save this listing and receive e-mail updates if the status of the property changes.
Share this property by completing the the form below. Your friend will receive an e-mail from you with a link to view the details of this property.
Send a message and we'll respond shortly.
We will not rent, share, or sell your information. Privacy Policy.