Hawaii's most accurate home valuation tool.
Start Tracking your home's value today!
Start Tracking your home's value today!
Are you interested in a real estate career in Hawaii?
Condo
in
Kihei - South Maui
Maui
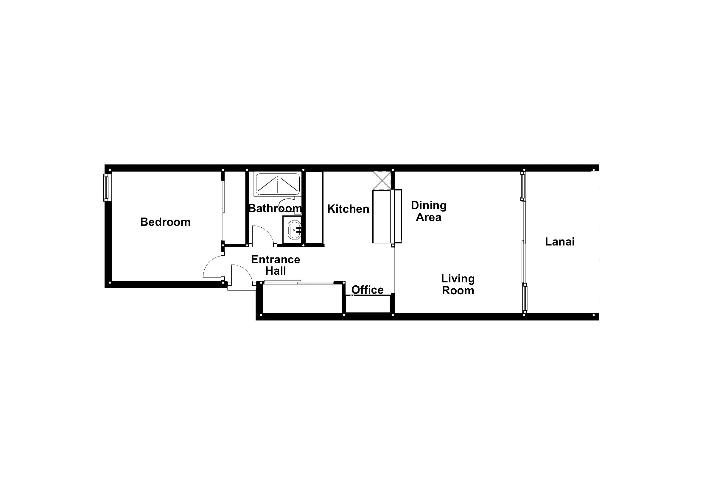
Inviting one-bedroom, one-bath condo in the highly regarded Maui Vista community. This second-floor unit welcomes you with natural light, an easy-flow layout, and a breezy lanai overlooking the lush tropical grounds. It’s a comfortable, practical space that instantly puts you in a Kihei state of mind. The bedroom offers peaceful separation and ample storage, and the in-unit washer and dryer make everyday living simple. Split-system air conditioning keeps the interior cool after long days at the beach. Maui Vista is known for its warm atmosphere and superb location, with three pools, six tennis courts, pickleball, and beautifully maintained landscaping. From here, you’re moments from South Kihei’s favorite beaches, dining, shops, and endless outdoor activities. Whether you’re looking for a personal retreat, a second home, or a strong vacation rental opportunity, this condo is ready to be enjoyed. Come see why Maui Vista continues to be one of Kihei’s most appealing destinations. Contact your favorite Realtor today and come see it for yourself!
2191 Kihei Rd 2211 Kihei 96753 is listed Courtesy of Keller Williams Realty Maui-Ka Cell: 808-269-2997
Congratulations, you have access to Hawaii's most comprehensive Real Estate Search! Please help us to better serve you by answering these optional questions.
This email is already registered. Click the button below and we'll send you a link to reset your password.
You have already registered using your FB account.
Check your inbox for an email from brokersmls@locationshawaii.com. It contains a link to reset your password.
The agent who gave you access to this website is no longer with Locations LLC.
Due to local MLS regulations, you will need to re-register if you would like to continue your access.
We will pre-fill the registration form with information in our files. Once you click Register you can either select a new agent or one will be assigned for you.
Sorry for the inconvenience, Locations LLC.
Request an appointment to view this property by completing the information below. Please note your appointment is not confirmed until an agent calls you.
Disclaimer: The properties we may show you may be Locations LLC listings or listings of other brokerage firms. Professional protocol requires agent to set up an appointment with the listings agent to show a property. Locations, LLC may only show properties marked "Active" and "ACS".
Keep your eye on this property! Save this listing and receive e-mail updates if the status of the property changes.
Share this property by completing the the form below. Your friend will receive an e-mail from you with a link to view the details of this property.
Send a message and we'll respond shortly.
We will not rent, share, or sell your information. Privacy Policy.