Hawaii's most accurate home valuation tool.
Start Tracking your home's value today!
Start Tracking your home's value today!
Are you interested in a real estate career in Hawaii?
Vacant Land in Kilohana Kai At Waikoloa - South Kohala Hawaii
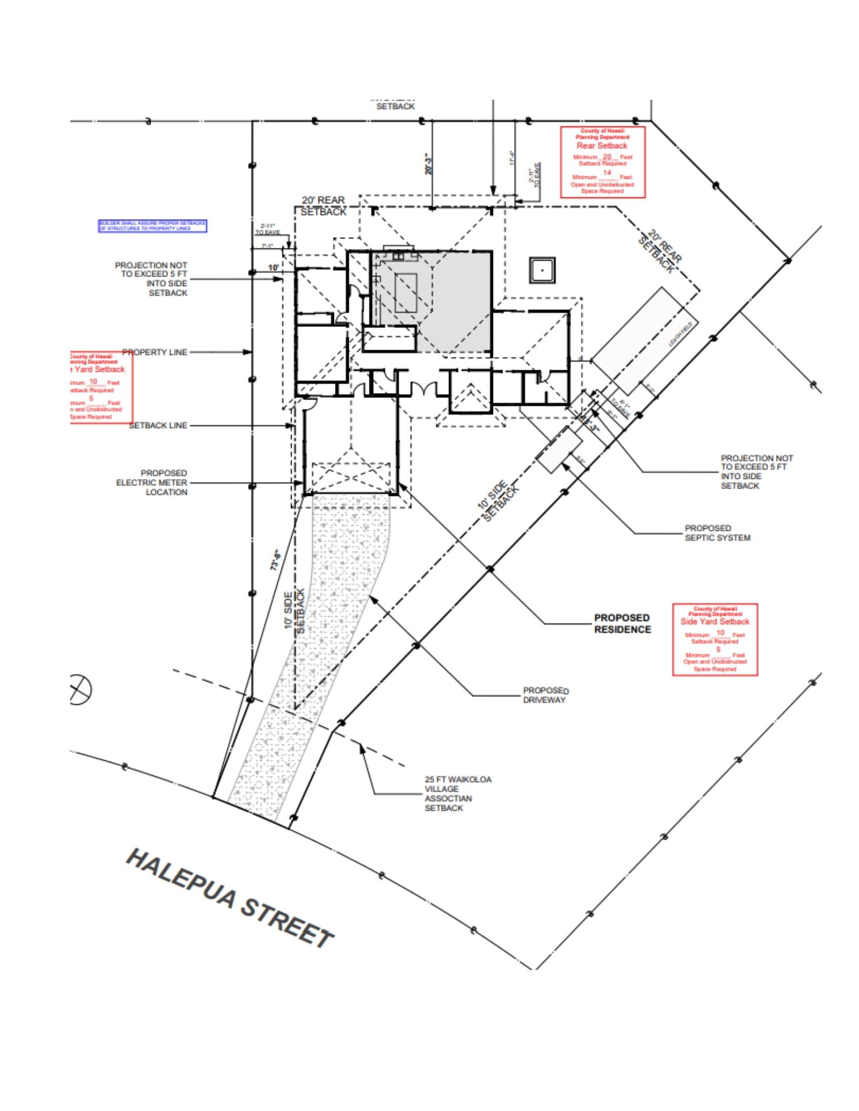
Now, this is the one! Your dream home in paradise awaits you! The perfect opportunity to build your home here in the desirable neighborhood of Kilohana Kai, a premier subdivision in Waikoloa Village. Permitted house plans are already County approved and ready to transfer to the new owners, on this 11,904 sqft lot, cleared and ready to build. This home has 1,922 sqft of living area, plus a front and back lanai for an additional 304 sqft of indoor/outdoor living, and a large 526 sqft. 2 car garage. Not too big, not too small, but just right~ Home plans included: - 3 Bedrooms plus a versatile Study, ideal for a Guest Room or Office - 2 full Baths plus Powder Room - Generous Walk in Pantry - Dedicated indoor Laundry Room and additional Storage Home Highlights: - Spacious 243 sqft Primary Suite with large Walk in Closet and Ensuite Bathroom - Vaulted ceilings with open-concept layout - Single-level design for ease and comfort *Permitted plans also includes a private hot tub just off the Primary Suite This home was designed with intention–to create not just a place to live, but a place to grow, to gather, and to build a legacy. Enjoy quiet mornings with coffee or evenings filled with family and friends. Every detail reflects ease, warmth, rest, and renewal in luxury style.
68-3666 Halepua St Waikoloa 96738 is listed Courtesy of Go Luxe Realty
Congratulations, you have access to Hawaii's most comprehensive Real Estate Search! Please help us to better serve you by answering these optional questions.
This email is already registered. Click the button below and we'll send you a link to reset your password.
You have already registered using your FB account.
Check your inbox for an email from brokersmls@locationshawaii.com. It contains a link to reset your password.
The agent who gave you access to this website is no longer with Locations LLC.
Due to local MLS regulations, you will need to re-register if you would like to continue your access.
We will pre-fill the registration form with information in our files. Once you click Register you can either select a new agent or one will be assigned for you.
Sorry for the inconvenience, Locations LLC.
Request an appointment to view this property by completing the information below. Please note your appointment is not confirmed until an agent calls you.
Disclaimer: The properties we may show you may be Locations LLC listings or listings of other brokerage firms. Professional protocol requires agent to set up an appointment with the listings agent to show a property. Locations, LLC may only show properties marked "Active" and "ACS".
Keep your eye on this property! Save this listing and receive e-mail updates if the status of the property changes.
Share this property by completing the the form below. Your friend will receive an e-mail from you with a link to view the details of this property.
Send a message and we'll respond shortly.
We will not rent, share, or sell your information. Privacy Policy.