Hawaii's most accurate home valuation tool.
Start Tracking your home's value today!
Start Tracking your home's value today!
Are you interested in a real estate career in Hawaii?
Single Family Home in Nanawale Estates Subdivision - Puna Hawaii
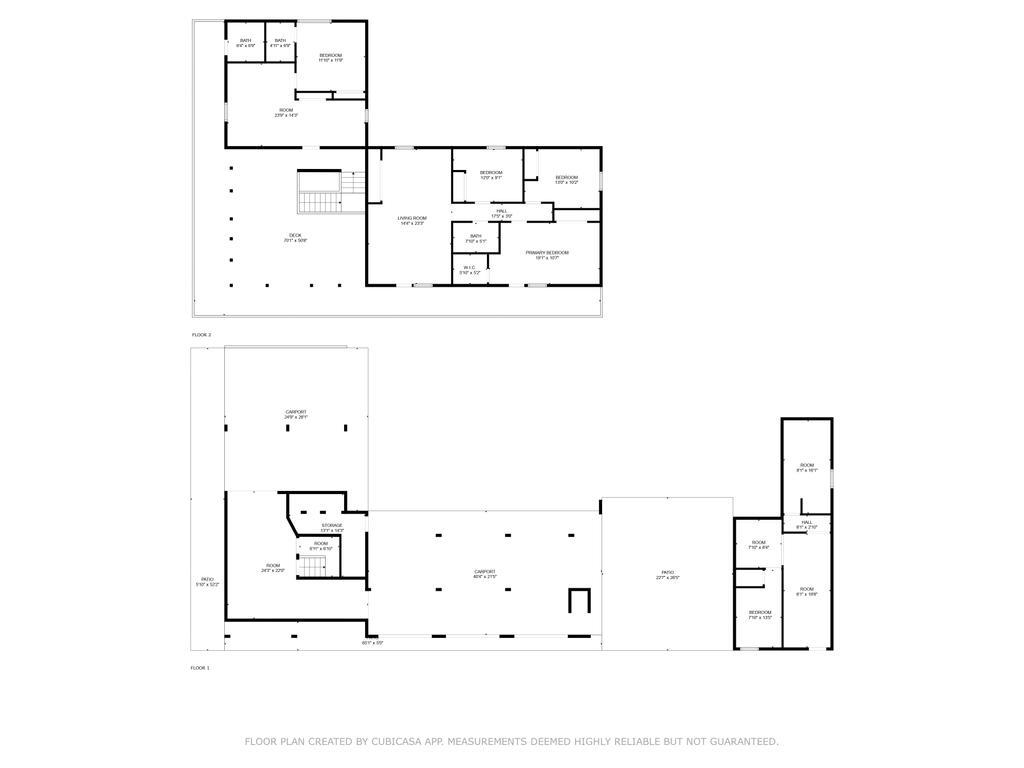
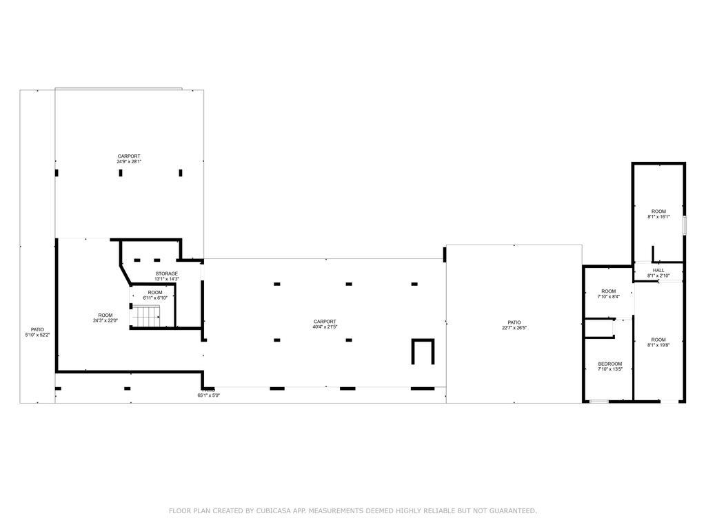
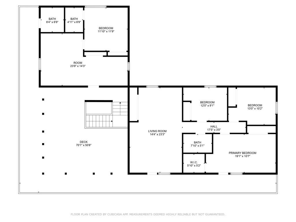
Under construction with a Major Head Start If you're in the market for a property with potential and don't mind putting in some work, this might be just what you're looking for. This partially built 4-bedroom, 3-bathroom home offers a solid foundation with key elements already in place–perfect for someone ready to take on a rewarding project. What’s Already Completed: Structure: The main building is framed with durable metal and includes a second-floor layout featuring four bedrooms, three bathrooms, and a designated laundry area. Exterior: Doors and windows are installed, and a cargo elevator provides convenient upper-level access. Systems: Electrical is rough-in and mostly complete. A propane boiler has been purchased to support heating and a future Jacuzzi. A rainwater catchment system is partially set up, including concrete pad for catchment tank. Extras: The property also includes a 640 sq. ft detached storage building with a functional workshop. What Needs to Be Completed:: Interior Finishes: Installation of drywall, paint, and bathroom/laundry room tiles is needed. Kitchen cabinets, countertops, bathroom vanities, ceiling tiles, and fixtures, such as: toilets, tubs, sinks, and dishwasher still need to be purchased. Electrical: The home requires a power source–such as solar, utility hookup, or generator–and completion of interior wiring for lights, outlets, and kitchen appliances. Plumbing: Final plumbing work is needed, including pipe installation and fixture connections. A rainwater tank must be purchased and installed. Propane System: The propane setup needs to be finalized, with lines connected to kitchen cooktops and water heating. Exterior Enhancements: Additional features such as fencing, security lighting, a rock wall, and optional upgrades like a Jacuzzi or automatic gate can be added to complete the property.
14-3547 Forest Rd Pahoa 96778 is listed Courtesy of First Island Realty, Llc
Congratulations, you have access to Hawaii's most comprehensive Real Estate Search! Please help us to better serve you by answering these optional questions.
This email is already registered. Click the button below and we'll send you a link to reset your password.
You have already registered using your FB account.
Check your inbox for an email from brokersmls@locationshawaii.com. It contains a link to reset your password.
The agent who gave you access to this website is no longer with Locations LLC.
Due to local MLS regulations, you will need to re-register if you would like to continue your access.
We will pre-fill the registration form with information in our files. Once you click Register you can either select a new agent or one will be assigned for you.
Sorry for the inconvenience, Locations LLC.
Request an appointment to view this property by completing the information below. Please note your appointment is not confirmed until an agent calls you.
Disclaimer: The properties we may show you may be Locations LLC listings or listings of other brokerage firms. Professional protocol requires agent to set up an appointment with the listings agent to show a property. Locations, LLC may only show properties marked "Active" and "ACS".
Keep your eye on this property! Save this listing and receive e-mail updates if the status of the property changes.
Share this property by completing the the form below. Your friend will receive an e-mail from you with a link to view the details of this property.
Send a message and we'll respond shortly.
We will not rent, share, or sell your information. Privacy Policy.