Hawaii's most accurate home valuation tool.
Start Tracking your home's value today!
Start Tracking your home's value today!
Are you interested in a real estate career in Hawaii?
Single Family Home in Mauna Loa Estates - Puna Hawaii
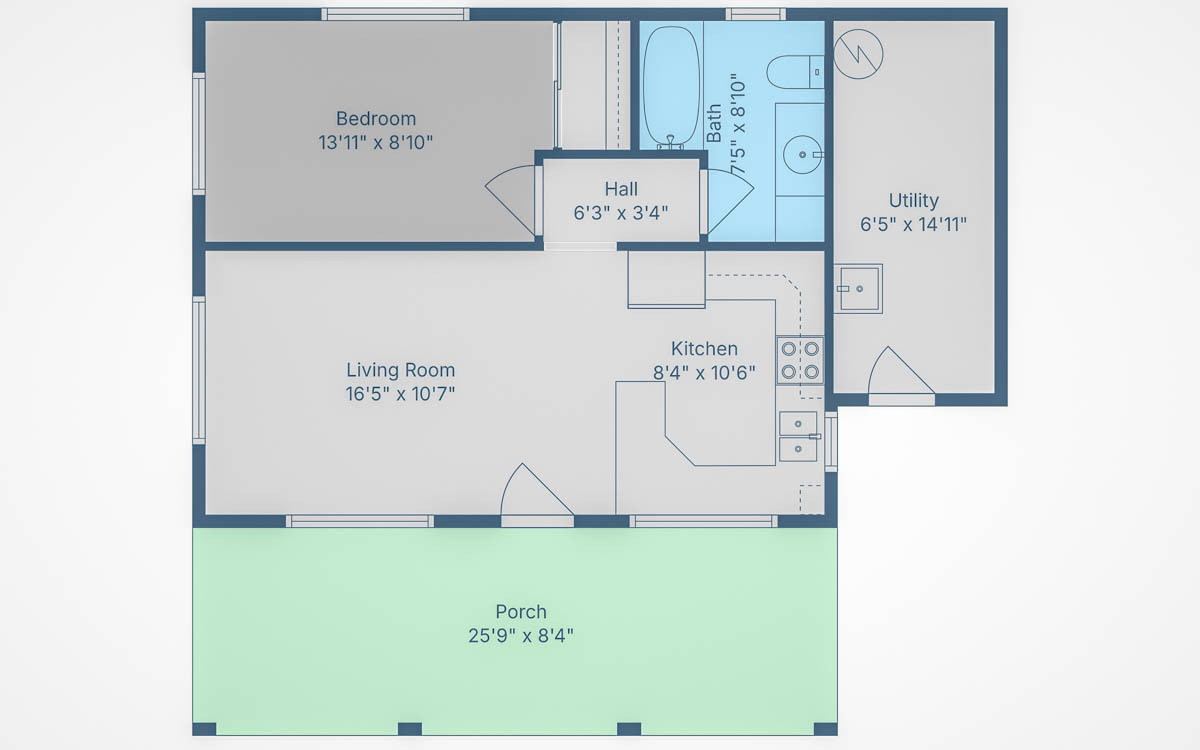
Cozy Cottage and adjacent vacant lot secure your comfort and privacy into the future. Sale includes Cottage at 11-3849 2nd St. (TMK: 3/1-1-6-84) and adjacent vacant lot at 11-3845 2nd St. (TMK: 3/1-1-6-85) for a total of 40,000 sqft. Cottage updated at time of purchase in 2022. Seller installed new kitchen cabinets, counter tops and appliances, including washer and dryer. The bathroom was upgraded with vanity, linen closet and tub with shower. Additionally the outdoor laundry area was enclosed to protect from weather and increase storage area. Cottage sits back from the road with foliage left natural providing privacy from the street and neighbors. The extra vacant lot offers additional privacy & rainforest views to enjoy, plus future options. Your opportunity to help preserve the rainforest! Just minutes' drive to Volcano Village for the post office, groceries, restaurants, farmer's markets and community events. Volcano golf course and hiking or lava viewing at Hawaii Volcanoes National Park are approximately 5 miles south on Hwy 11. A County ambulance & fire station are also within 5 miles. Mauna Loa Estates is an established neighborhood with paved private roads maintained by an organized road association. Annual road fees are currently $138/year per lot, subject to change in the future.
11-3849 2Nd St Volcano 96785 is listed Courtesy of Aloha Sotheby's Intl Realty - Hawai'i
Congratulations, you have access to Hawaii's most comprehensive Real Estate Search! Please help us to better serve you by answering these optional questions.
This email is already registered. Click the button below and we'll send you a link to reset your password.
You have already registered using your FB account.
Check your inbox for an email from brokersmls@locationshawaii.com. It contains a link to reset your password.
The agent who gave you access to this website is no longer with Locations LLC.
Due to local MLS regulations, you will need to re-register if you would like to continue your access.
We will pre-fill the registration form with information in our files. Once you click Register you can either select a new agent or one will be assigned for you.
Sorry for the inconvenience, Locations LLC.
Request an appointment to view this property by completing the information below. Please note your appointment is not confirmed until an agent calls you.
Disclaimer: The properties we may show you may be Locations LLC listings or listings of other brokerage firms. Professional protocol requires agent to set up an appointment with the listings agent to show a property. Locations, LLC may only show properties marked "Active" and "ACS".
Keep your eye on this property! Save this listing and receive e-mail updates if the status of the property changes.
Share this property by completing the the form below. Your friend will receive an e-mail from you with a link to view the details of this property.
Send a message and we'll respond shortly.
We will not rent, share, or sell your information. Privacy Policy.