Hawaii's most accurate home valuation tool.
Start Tracking your home's value today!
Start Tracking your home's value today!
Are you interested in a real estate career in Hawaii?
Single Family Home
in
Village Park - Waipahu
Oahu
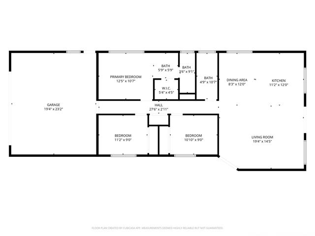
Move-in ready and fully remodeled, this three-bedroom, two-bath Village Park residence sits on an elevated corner lot. The home features new flooring, fresh paint, updated lighting and plumbing fixtures, split A/C, and a beautifully redesigned kitchen with new cabinets, quartz countertops with a waterfall edge, stainless steel appliances, and a pass-through window to the lanai bar counter. The primary bath features a tiled walk-in shower. Conveniently located in Waipahu near shopping, parks, schools, and major commuter routes! Home Features - 3 bedrooms - 2 bathrooms - 1,220 sq ft interior - 4,664 sq ft elevated corner lot - New flooring - Fresh paint on interior and exterior - Updated lighting and plumbing fixtures - New kitchen cabinets with quartz countertops with waterfall edge - Stainless steel appliances - Pass-through window to lanai bar counter - Tiled walk-in shower in primary bath - New Vanities and countertops with vessel sinks - Split A/C - Single-level layout - Garage and driveway parking
94-469 Alapine Street Waipahu 96797 is listed Courtesy of Compass (808) 825-4277
Congratulations, you have access to Hawaii's most comprehensive Real Estate Search! Please help us to better serve you by answering these optional questions.
This email is already registered. Click the button below and we'll send you a link to reset your password.
You have already registered using your FB account.
Check your inbox for an email from brokersmls@locationshawaii.com. It contains a link to reset your password.
The agent who gave you access to this website is no longer with Locations LLC.
Due to local MLS regulations, you will need to re-register if you would like to continue your access.
We will pre-fill the registration form with information in our files. Once you click Register you can either select a new agent or one will be assigned for you.
Sorry for the inconvenience, Locations LLC.
Request an appointment to view this property by completing the information below. Please note your appointment is not confirmed until an agent calls you.
Disclaimer: The properties we may show you may be Locations LLC listings or listings of other brokerage firms. Professional protocol requires agent to set up an appointment with the listings agent to show a property. Locations, LLC may only show properties marked "Active" and "ACS".
Keep your eye on this property! Save this listing and receive e-mail updates if the status of the property changes.
Share this property by completing the the form below. Your friend will receive an e-mail from you with a link to view the details of this property.
Send a message and we'll respond shortly.
We will not rent, share, or sell your information. Privacy Policy.