Hawaii's most accurate home valuation tool.
Start Tracking your home's value today!
Start Tracking your home's value today!
Are you interested in a real estate career in Hawaii?
Single Family Home
in
Mokuleia - North Shore
Oahu
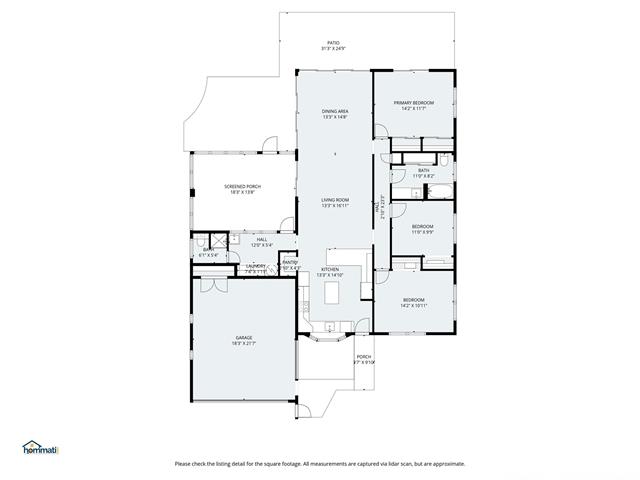
Open House Sunday, 4/12/2026, 2-5PM. Gorgeous ocean front single family home with AC, large grassy yard, garage, permitted retaining wall on the ocean, bonus room, and firepit. If you dream of ocean front living in the country this is your chance! One of the lowest priced ocean front properties on Oahu's North Shore with three bedrooms, two bathrooms and large bonus room/enclosed porch. This open concept home is single level and could be your forever home in paradise! Bonus room is large enough for a pool table, hot tub, home gym, home office, entertaining or relaxing with the sounds of the ocean. Sandy beach is present in the summer time with gorgeous surf in the winter. Solar hot water heater and upgraded kitchen with newer appliances also save electricity. Enjoy the backyard fire pit and grassy yard to view both sunrises and sunsets depending on the time of year. Furniture negotiable. Fresh exterior and interior paint October 2024. Solid wood cabinets refinished and composite stone countertops added in 2023. Cool tile floors throughout. *See our virtual tour, 360 walk through and drone videos. *Retaining wall permit numbers 755584 & 684164.
68-687 Farrington Highway Waialua 96791 is listed Courtesy of Seaside Realty Llc (808) 723-0953
Congratulations, you have access to Hawaii's most comprehensive Real Estate Search! Please help us to better serve you by answering these optional questions.
This email is already registered. Click the button below and we'll send you a link to reset your password.
You have already registered using your FB account.
Check your inbox for an email from brokersmls@locationshawaii.com. It contains a link to reset your password.
The agent who gave you access to this website is no longer with Locations LLC.
Due to local MLS regulations, you will need to re-register if you would like to continue your access.
We will pre-fill the registration form with information in our files. Once you click Register you can either select a new agent or one will be assigned for you.
Sorry for the inconvenience, Locations LLC.
Request an appointment to view this property by completing the information below. Please note your appointment is not confirmed until an agent calls you.
Disclaimer: The properties we may show you may be Locations LLC listings or listings of other brokerage firms. Professional protocol requires agent to set up an appointment with the listings agent to show a property. Locations, LLC may only show properties marked "Active" and "ACS".
Keep your eye on this property! Save this listing and receive e-mail updates if the status of the property changes.
Share this property by completing the the form below. Your friend will receive an e-mail from you with a link to view the details of this property.
Send a message and we'll respond shortly.
We will not rent, share, or sell your information. Privacy Policy.