Hawaii's most accurate home valuation tool.
Start Tracking your home's value today!
Start Tracking your home's value today!
Are you interested in a real estate career in Hawaii?
Multi-Family
in
Punchbowl-Lower - Metro Honolulu
Oahu
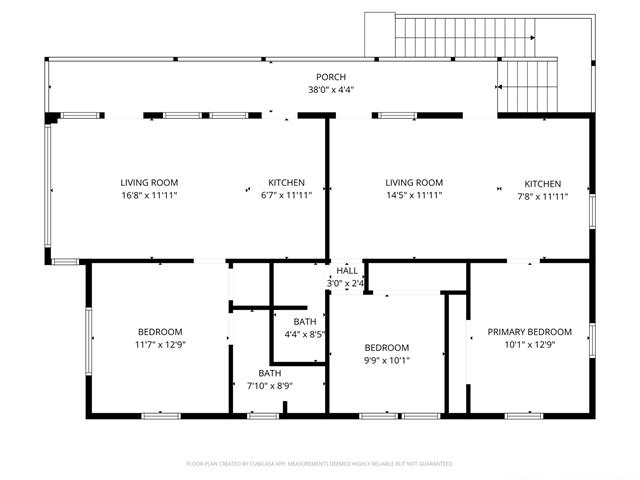
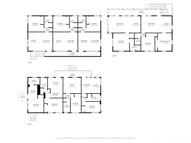
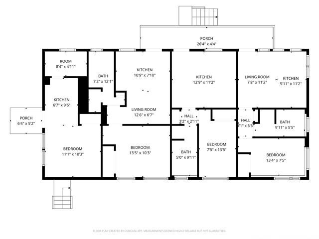
PRIME INVESTMENT OPPORTUNITY - REALIZE IMMEDIATE INCOME UPSIDE OF 7% + CAP RATE W/ ONLY A FEW MINOR CHANGES!! - In the heart of Honolulu this 9-unit property at 404 Magellan Ave offers a strong foundation with 9 separate electric meters, 9 separate gas meters, and individual gas water heaters for each unit—a rare setup that maximizes tenant independence and reduces ownership expenses. The building is currently generating income with solid rental history, and offers excellent upside potential: simply increase rents to market value or enhance returns with light remodeling or upgrades. This property provides flexibility and long-term growth opportunities in a highly desirable location close to schools, shops, and major transit routes. A must-see for investors looking for cash flow today and room to grow tomorrow!
404 Magellan Avenue Honolulu 96813 is listed Courtesy of Compass (808) 825-4277
Congratulations, you have access to Hawaii's most comprehensive Real Estate Search! Please help us to better serve you by answering these optional questions.
This email is already registered. Click the button below and we'll send you a link to reset your password.
You have already registered using your FB account.
Check your inbox for an email from brokersmls@locationshawaii.com. It contains a link to reset your password.
The agent who gave you access to this website is no longer with Locations LLC.
Due to local MLS regulations, you will need to re-register if you would like to continue your access.
We will pre-fill the registration form with information in our files. Once you click Register you can either select a new agent or one will be assigned for you.
Sorry for the inconvenience, Locations LLC.
Request an appointment to view this property by completing the information below. Please note your appointment is not confirmed until an agent calls you.
Disclaimer: The properties we may show you may be Locations LLC listings or listings of other brokerage firms. Professional protocol requires agent to set up an appointment with the listings agent to show a property. Locations, LLC may only show properties marked "Active" and "ACS".
Keep your eye on this property! Save this listing and receive e-mail updates if the status of the property changes.
Share this property by completing the the form below. Your friend will receive an e-mail from you with a link to view the details of this property.
Send a message and we'll respond shortly.
We will not rent, share, or sell your information. Privacy Policy.