Hawaii's most accurate home valuation tool.
Start Tracking your home's value today!
Start Tracking your home's value today!
Are you interested in a real estate career in Hawaii?
Condo
in
Moiliili - Metro Honolulu
Oahu
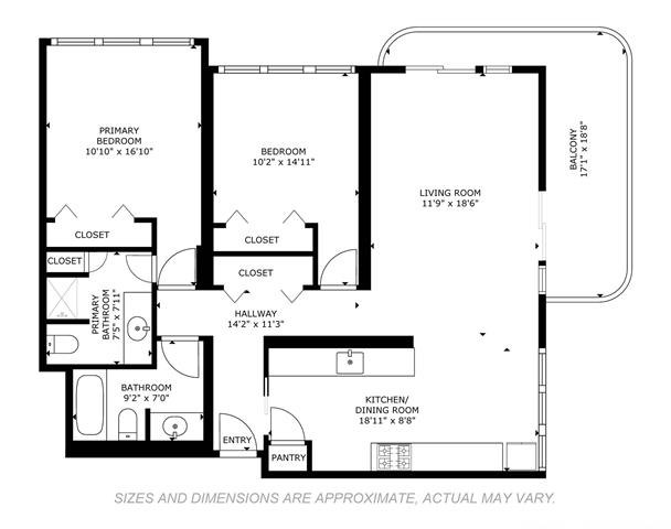
A two bedroom, two bath unit featuring a spectacular wrap-around lanai with stunning mountain, city, and Diamond Head views. The unit is in mostly original condition, offering an open canvas ready for fresh upgrade ideas. The property is to be sold "AS IS." Two side by side open parking stalls. Property also features a beautiful pool area, secured building and elevators, manager on site M-F, and a great maintenance staff as well. Convenient location is within minutes to University of Hawaii Manoa, Chaminade University, Market City shopping and dining, bus lines, freeway access, and Waikiki. $50K special assessment has been paid by seller.
2825 King Street 2003 Honolulu 96826 is listed Courtesy of Zen Properties Incorporated (808) 949-4318
Congratulations, you have access to Hawaii's most comprehensive Real Estate Search! Please help us to better serve you by answering these optional questions.
This email is already registered. Click the button below and we'll send you a link to reset your password.
You have already registered using your FB account.
Check your inbox for an email from brokersmls@locationshawaii.com. It contains a link to reset your password.
The agent who gave you access to this website is no longer with Locations LLC.
Due to local MLS regulations, you will need to re-register if you would like to continue your access.
We will pre-fill the registration form with information in our files. Once you click Register you can either select a new agent or one will be assigned for you.
Sorry for the inconvenience, Locations LLC.
Request an appointment to view this property by completing the information below. Please note your appointment is not confirmed until an agent calls you.
Disclaimer: The properties we may show you may be Locations LLC listings or listings of other brokerage firms. Professional protocol requires agent to set up an appointment with the listings agent to show a property. Locations, LLC may only show properties marked "Active" and "ACS".
Keep your eye on this property! Save this listing and receive e-mail updates if the status of the property changes.
Share this property by completing the the form below. Your friend will receive an e-mail from you with a link to view the details of this property.
Send a message and we'll respond shortly.
We will not rent, share, or sell your information. Privacy Policy.