Hawaii's most accurate home valuation tool.
Start Tracking your home's value today!
Start Tracking your home's value today!
Are you interested in a real estate career in Hawaii?
Condo in Kakaako - Metro Honolulu Oahu
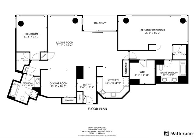
New Price! Seller wants it sold! Rarely available and highly sought after double unit featuring 2 large primary suites in the prestigious Hawaiki Tower. Beautiful corner end unit with spectacular ocean & city views from every room with the floor to ceiling windows that let in lots of natural light. Enjoy lots of space with this open floorplan totaling over 2000 SF. THREE parking stalls which all have storage cabinets above each stall. Upgrades include new flooring throughout the living, dining, kitchen and bedrooms, interior is freshly painted, and new cabinet doors in the kitchen and bath. Relish in luxury amenities including the heated pool, whirlpool, tennis court, putting green, play area, library & more or head to the sandy beaches at Ala Moana Beach Park across the street. Roam the neighborhood full of shopping, restaurants, coffee shops, Ala Moana Shopping Center, Ward Center and world-famous Waikiki just a mile away. Pet-friendly building known for low maintenance fees. One or more photos have been enhanced.
88 Piikoi Street 3501/3502 Honolulu 96814 is listed Courtesy of Redfin Corporation (808) 201-2821
Congratulations, you have access to Hawaii's most comprehensive Real Estate Search! Please help us to better serve you by answering these optional questions.
This email is already registered. Click the button below and we'll send you a link to reset your password.
You have already registered using your FB account.
Check your inbox for an email from brokersmls@locationshawaii.com. It contains a link to reset your password.
The agent who gave you access to this website is no longer with Locations LLC.
Due to local MLS regulations, you will need to re-register if you would like to continue your access.
We will pre-fill the registration form with information in our files. Once you click Register you can either select a new agent or one will be assigned for you.
Sorry for the inconvenience, Locations LLC.
Request an appointment to view this property by completing the information below. Please note your appointment is not confirmed until an agent calls you.
Disclaimer: The properties we may show you may be Locations LLC listings or listings of other brokerage firms. Professional protocol requires agent to set up an appointment with the listings agent to show a property. Locations, LLC may only show properties marked "Active" and "ACS".
Keep your eye on this property! Save this listing and receive e-mail updates if the status of the property changes.
Share this property by completing the the form below. Your friend will receive an e-mail from you with a link to view the details of this property.
Send a message and we'll respond shortly.
We will not rent, share, or sell your information. Privacy Policy.