Hawaii's most accurate home valuation tool.
Start Tracking your home's value today!
Start Tracking your home's value today!
Are you interested in a real estate career in Hawaii?
Condo in Kakaako - Metro Honolulu Oahu
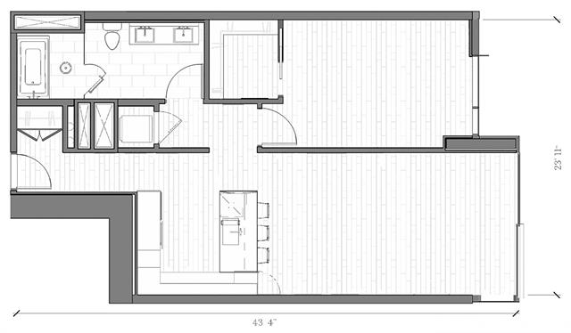
This pristine luxury one-bedroom condominium, Victoria Place Unit 906, offers an exceptional opportunity for buyers seeking elegance, comfort, and stunning views in one of Honolulu’s most desirable addresses. Featuring a spacious layout with approximately 895 square feet of living space, this residence is thoughtfully designed to maximize both style and functionality. High-end upgrades, including motorized shades and custom bathroom shelving, elevate the home’s modern sophistication and convenience. Expansive windows frame breathtaking views of the Pacific Ocean, Ala Moana Park, and Diamond Head, creating a serene backdrop for everyday living. Perfectly situated within the prestigious Victoria Place community, this condo combines world-class amenities, luxurious design, and an unparalleled location to deliver the ultimate island lifestyle.
1100 Ala Moana Boulevard 906 Honolulu 96814 is listed Courtesy of List Sotheby's Int'l Realty (808) 735-2411
Congratulations, you have access to Hawaii's most comprehensive Real Estate Search! Please help us to better serve you by answering these optional questions.
This email is already registered. Click the button below and we'll send you a link to reset your password.
You have already registered using your FB account.
Check your inbox for an email from brokersmls@locationshawaii.com. It contains a link to reset your password.
The agent who gave you access to this website is no longer with Locations LLC.
Due to local MLS regulations, you will need to re-register if you would like to continue your access.
We will pre-fill the registration form with information in our files. Once you click Register you can either select a new agent or one will be assigned for you.
Sorry for the inconvenience, Locations LLC.
Request an appointment to view this property by completing the information below. Please note your appointment is not confirmed until an agent calls you.
Disclaimer: The properties we may show you may be Locations LLC listings or listings of other brokerage firms. Professional protocol requires agent to set up an appointment with the listings agent to show a property. Locations, LLC may only show properties marked "Active" and "ACS".
Keep your eye on this property! Save this listing and receive e-mail updates if the status of the property changes.
Share this property by completing the the form below. Your friend will receive an e-mail from you with a link to view the details of this property.
Send a message and we'll respond shortly.
We will not rent, share, or sell your information. Privacy Policy.