Hawaii's most accurate home valuation tool.
Start Tracking your home's value today!
Start Tracking your home's value today!
Are you interested in a real estate career in Hawaii?
Vacant Land in Dowsett - Metro Honolulu Oahu
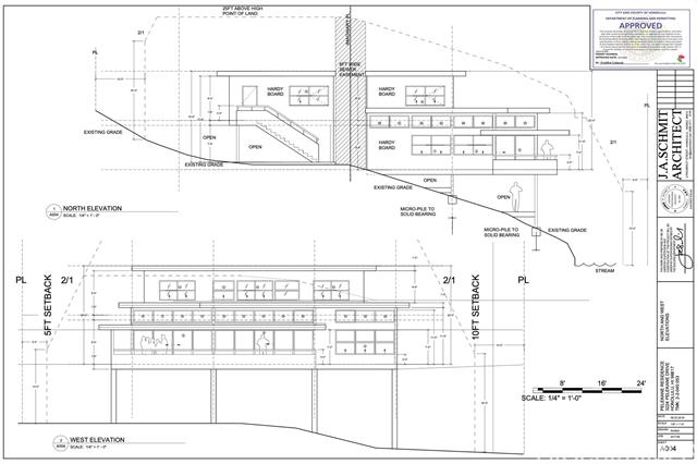
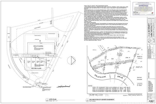
Nestled among the lush canopies of Dowsett, next to the tumbling Nu'uanu Stream, this serene parcel has APPROVED architectural plans, PERMITTED TO BUILD — No DPP wait. Designed by award-winning local architect Jim Schmit, known for tropical modernism and island sensibility, this contemporary residence is designed to live among the trees and belong to this coveted Hawaii neighborhood. Enter from a level approach off Pelekane Drive, expansive floor-to-ceiling windows frame the living greenery like art, while below, the stream tumbles across terraced tiers into soothing gentle waterfalls. A covered lanai extends living outward, and an approved ADU above the four-car carport offers endless possibility — home office, studio, guest quarters. This is Dowsett: steeped in history, embraced by tropical vegetation, and the quiet magic of one of O'ahu's most cherished valleys. The lot is graced with monstera, Java plum, mango, Hawaiian ginger, 'ulu, ti leaf, heliconia, and more. Plans fully approved — talk with your builder today.
3224 Pelekane Drive PARCEL 053 Honolulu 96817 is listed Courtesy of Hawaii Life (800) 667-5028
Congratulations, you have access to Hawaii's most comprehensive Real Estate Search! Please help us to better serve you by answering these optional questions.
This email is already registered. Click the button below and we'll send you a link to reset your password.
You have already registered using your FB account.
Check your inbox for an email from brokersmls@locationshawaii.com. It contains a link to reset your password.
The agent who gave you access to this website is no longer with Locations LLC.
Due to local MLS regulations, you will need to re-register if you would like to continue your access.
We will pre-fill the registration form with information in our files. Once you click Register you can either select a new agent or one will be assigned for you.
Sorry for the inconvenience, Locations LLC.
Request an appointment to view this property by completing the information below. Please note your appointment is not confirmed until an agent calls you.
Disclaimer: The properties we may show you may be Locations LLC listings or listings of other brokerage firms. Professional protocol requires agent to set up an appointment with the listings agent to show a property. Locations, LLC may only show properties marked "Active" and "ACS".
Keep your eye on this property! Save this listing and receive e-mail updates if the status of the property changes.
Share this property by completing the the form below. Your friend will receive an e-mail from you with a link to view the details of this property.
Send a message and we'll respond shortly.
We will not rent, share, or sell your information. Privacy Policy.