Hawaii's most accurate home valuation tool.
Start Tracking your home's value today!
Start Tracking your home's value today!
Are you interested in a real estate career in Hawaii?
Single Family Home in Makakilo-Royal Ridge - Makakilo Oahu
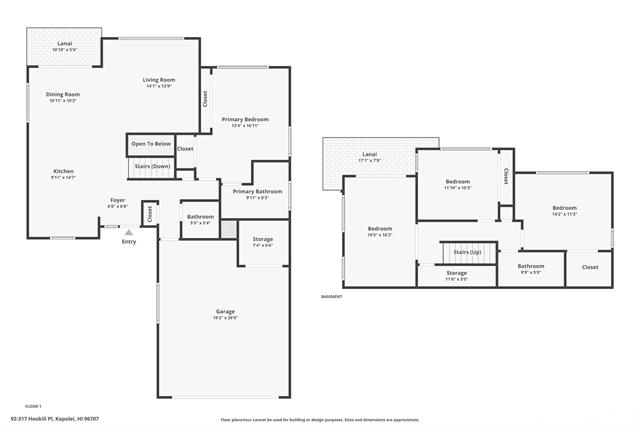
WOW, WHAT A VIEW! Breathtaking ocean vistas from every room of this 3-bedroom, 2.5-bath, perimeter lot home in Upper Makakilo. The chef’s kitchen impresses with a Sub-Zero refrigerator, massive island, outdoor-venting range, microwave, and a wine fridge. Split AC in all main rooms and bedrooms. 18-panel owned PV system and battery backup keep utility costs manageable. Enjoy the flexible bonus room as a home office, guest area, or creative space. Start your mornings on the back lanai with coffee and ocean breezes or host unforgettable dinners on the front lanai under the stars. The upper terrace features a serene koi pond above 18 fruit trees in and just beyond the backyard, including orange, mango, avocado, lime, pomegranate, pomelo, and tangerine. A gardener’s dream, the property includes a foundation already in place for a future greenhouse. Storage abounds with a garage tool area, multiple linen closets upstairs and downstairs, an under-the-stairs closet, and an impressive ~310 sq. ft. bonus storage room accessible from the side of the home. HOA $83.29/yr. VA buyers may assume the 2.375% loan with ~$886k balance. Secondary financing *might* be avail. Schedule a showing today!
92-317 Hookili Place Kapolei 96707 is listed Courtesy of Squareterra (808) 207-0636
Congratulations, you have access to Hawaii's most comprehensive Real Estate Search! Please help us to better serve you by answering these optional questions.
This email is already registered. Click the button below and we'll send you a link to reset your password.
You have already registered using your FB account.
Check your inbox for an email from brokersmls@locationshawaii.com. It contains a link to reset your password.
The agent who gave you access to this website is no longer with Locations LLC.
Due to local MLS regulations, you will need to re-register if you would like to continue your access.
We will pre-fill the registration form with information in our files. Once you click Register you can either select a new agent or one will be assigned for you.
Sorry for the inconvenience, Locations LLC.
Request an appointment to view this property by completing the information below. Please note your appointment is not confirmed until an agent calls you.
Disclaimer: The properties we may show you may be Locations LLC listings or listings of other brokerage firms. Professional protocol requires agent to set up an appointment with the listings agent to show a property. Locations, LLC may only show properties marked "Active" and "ACS".
Keep your eye on this property! Save this listing and receive e-mail updates if the status of the property changes.
Share this property by completing the the form below. Your friend will receive an e-mail from you with a link to view the details of this property.
Send a message and we'll respond shortly.
We will not rent, share, or sell your information. Privacy Policy.