Hawaii's most accurate home valuation tool.
Start Tracking your home's value today!
Start Tracking your home's value today!
Are you interested in a real estate career in Hawaii?
Single Family Home
in
Kapahulu - Diamond Head
Oahu
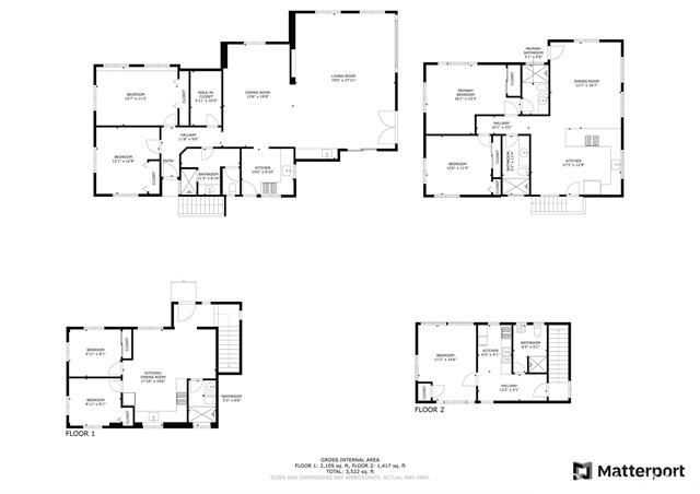
Brilliant Multi-Unit Investment Property with Huge Double Lot! Conveniently situated on a 10,000sqft lot just minutes from restaurants and beaches, this two-home property enjoys three separate units with incredible multigenerational and cash flow potential. Explore the main home to discover two-units (1st floor: 2BR/1BA/1,604sqft and 2nd floor: 2BR/2BA/1,044sqft) with tons of natural light, neutral colors, gorgeous faux wood flooring, spacious living rooms, separate entrances, and stunning gourmet kitchens boasting stainless-steel appliances. Nestled on the back of the property, the 1,062sqft third-unit dazzles with tile floors, large living room, open concept kitchen, two main-level bedrooms, and one main-level full bathroom. Venture to the second floor to find a spacious bedroom, kitchenette, and a full bathroom. Additional considerations include 6-parking spaces, tons of storage, tidy landscaping, relaxing outdoor spaces/patios, near schools and parks, and much more! Come See Today!
3232 Castle Street Honolulu 96815 is listed Courtesy of Real Estate Specialists (808) 791-3709
Congratulations, you have access to Hawaii's most comprehensive Real Estate Search! Please help us to better serve you by answering these optional questions.
This email is already registered. Click the button below and we'll send you a link to reset your password.
You have already registered using your FB account.
Check your inbox for an email from brokersmls@locationshawaii.com. It contains a link to reset your password.
The agent who gave you access to this website is no longer with Locations LLC.
Due to local MLS regulations, you will need to re-register if you would like to continue your access.
We will pre-fill the registration form with information in our files. Once you click Register you can either select a new agent or one will be assigned for you.
Sorry for the inconvenience, Locations LLC.
Request an appointment to view this property by completing the information below. Please note your appointment is not confirmed until an agent calls you.
Disclaimer: The properties we may show you may be Locations LLC listings or listings of other brokerage firms. Professional protocol requires agent to set up an appointment with the listings agent to show a property. Locations, LLC may only show properties marked "Active" and "ACS".
Keep your eye on this property! Save this listing and receive e-mail updates if the status of the property changes.
Share this property by completing the the form below. Your friend will receive an e-mail from you with a link to view the details of this property.
Send a message and we'll respond shortly.
We will not rent, share, or sell your information. Privacy Policy.