Hawaii's most accurate home valuation tool.
Start Tracking your home's value today!
Start Tracking your home's value today!
Are you interested in a real estate career in Hawaii?
Single Family Home
in
Kula/Ulupalakua/Kanaio - Upcountry Maui
Maui
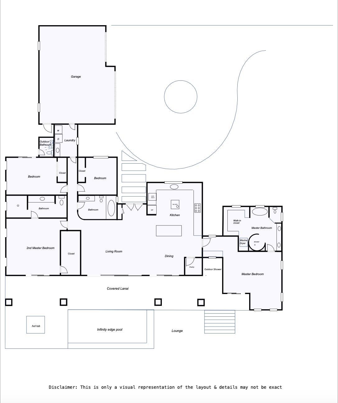
A newly completed 2023 Custom home in the prestigious Kula Io subdivision. This 4 bedroom 4 bath home sits on a 2 acre CPR'd lot of gorgeous land with amazing sunset ocean views. Over 5000 square feet of living, garage, and spacious lanai make this well designed house a wonderful place to call your home. Conveniently located just 18 mins from town, its the perfect place to be. At 2200 feet elevation the weather is perfect! Banana, macademia nut, and citrus trees are planted and ready to provide your family with fresh organic food. Fully fenced, and privately located, this is one of the best properties in the subdivision. This property is a CPR & is being sold as unit A, come take a look around sunset and prepare to be amazed!
280 Huahua Pl Lot 21, Unit A Kula 96790 is listed Courtesy of Big Wave Realty Llc
Congratulations, you have access to Hawaii's most comprehensive Real Estate Search! Please help us to better serve you by answering these optional questions.
This email is already registered. Click the button below and we'll send you a link to reset your password.
You have already registered using your FB account.
Check your inbox for an email from brokersmls@locationshawaii.com. It contains a link to reset your password.
The agent who gave you access to this website is no longer with Locations LLC.
Due to local MLS regulations, you will need to re-register if you would like to continue your access.
We will pre-fill the registration form with information in our files. Once you click Register you can either select a new agent or one will be assigned for you.
Sorry for the inconvenience, Locations LLC.
Request an appointment to view this property by completing the information below. Please note your appointment is not confirmed until an agent calls you.
Disclaimer: The properties we may show you may be Locations LLC listings or listings of other brokerage firms. Professional protocol requires agent to set up an appointment with the listings agent to show a property. Locations, LLC may only show properties marked "Active" and "ACS".
Keep your eye on this property! Save this listing and receive e-mail updates if the status of the property changes.
Share this property by completing the the form below. Your friend will receive an e-mail from you with a link to view the details of this property.
Send a message and we'll respond shortly.
We will not rent, share, or sell your information. Privacy Policy.