Hawaii's most accurate home valuation tool.
Start Tracking your home's value today!
Start Tracking your home's value today!
Are you interested in a real estate career in Hawaii?
Condo
in
Kaanapali - West Maui
Maui
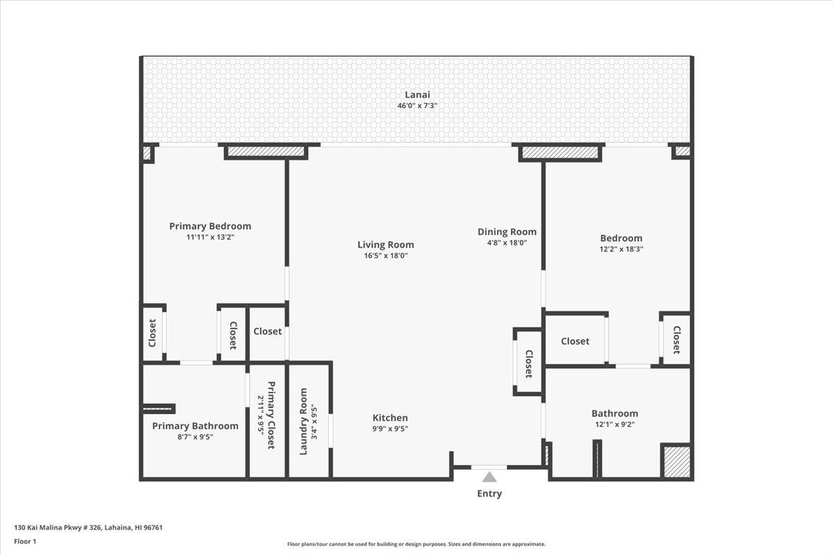
Experience the ultimate Maui lifestyle at Honua Kai Konea 326, a beautifully appointed two-bedroom, two-bath luxury condominium located within the premier Honua Kai Resort & Spa on world-famous Kaanapali North Beach. This spacious residence offers 1258 square feet of interior living space and an oversized 350 sq. ft. lanai, perfect for relaxing and enjoying views of the West Maui Mountains and the island’s stunning natural beauty. The desirable third-floor location provides a peaceful setting while maintaining convenient access to the resort’s amenities and the beach. The open-concept floor plan features floor-to-ceiling glass doors that blend indoor and outdoor living seamlessly. Each bedroom is equipped with a king-size bed, while the living area includes a queen sleeper sofa, allowing comfortable accommodations for up to six guests. The gourmet kitchen is fitted with stainless steel appliances, granite countertops, and custom cabinetry–ideal for entertaining or preparing meals at home. The luxurious bathrooms feature double vanities, walk-in showers, and deep soaking tubs for a spa-like experience. Honua Kai Resort offers an array of world-class amenities, including: Three acres of aquatic playgrounds with multiple pools, waterfalls, slides, and hot tubs; Duke’s Beach House Restaurant serving oceanfront dining and cocktails; Ho‘ola Spa featuring Hawaiian-inspired treatments and a Himalayan Salt Room; State-of-the-art fitness center; On-site Whaler’s General Store for convenience items, coffee, and beach gear. Located on 38 acres of beachfront property, Honua Kai provides direct access to Kaanapali’s pristine shoreline and scenic beachwalk. Enjoy snorkeling, swimming, or simply taking in the breathtaking Maui sunsets right outside your door. Whether you’re seeking a vacation retreat, rental investment, or luxury primary residence, Honua Kai Konea 326 presents a rare opportunity to own a piece of paradise in one of Maui’s most desirable resort communities.
130 Kai Malina Pkwy NR326 Lahaina 96761 is listed Courtesy of The Agency Maui Cell: 808-344-5575
Congratulations, you have access to Hawaii's most comprehensive Real Estate Search! Please help us to better serve you by answering these optional questions.
This email is already registered. Click the button below and we'll send you a link to reset your password.
You have already registered using your FB account.
Check your inbox for an email from brokersmls@locationshawaii.com. It contains a link to reset your password.
The agent who gave you access to this website is no longer with Locations LLC.
Due to local MLS regulations, you will need to re-register if you would like to continue your access.
We will pre-fill the registration form with information in our files. Once you click Register you can either select a new agent or one will be assigned for you.
Sorry for the inconvenience, Locations LLC.
Request an appointment to view this property by completing the information below. Please note your appointment is not confirmed until an agent calls you.
Disclaimer: The properties we may show you may be Locations LLC listings or listings of other brokerage firms. Professional protocol requires agent to set up an appointment with the listings agent to show a property. Locations, LLC may only show properties marked "Active" and "ACS".
Keep your eye on this property! Save this listing and receive e-mail updates if the status of the property changes.
Share this property by completing the the form below. Your friend will receive an e-mail from you with a link to view the details of this property.
Send a message and we'll respond shortly.
We will not rent, share, or sell your information. Privacy Policy.