Hawaii's most accurate home valuation tool.
Start Tracking your home's value today!
Start Tracking your home's value today!
Are you interested in a real estate career in Hawaii?
Single Family Home
in
Makawao/Olinda/Haliimaile - Upcountry Maui
Maui
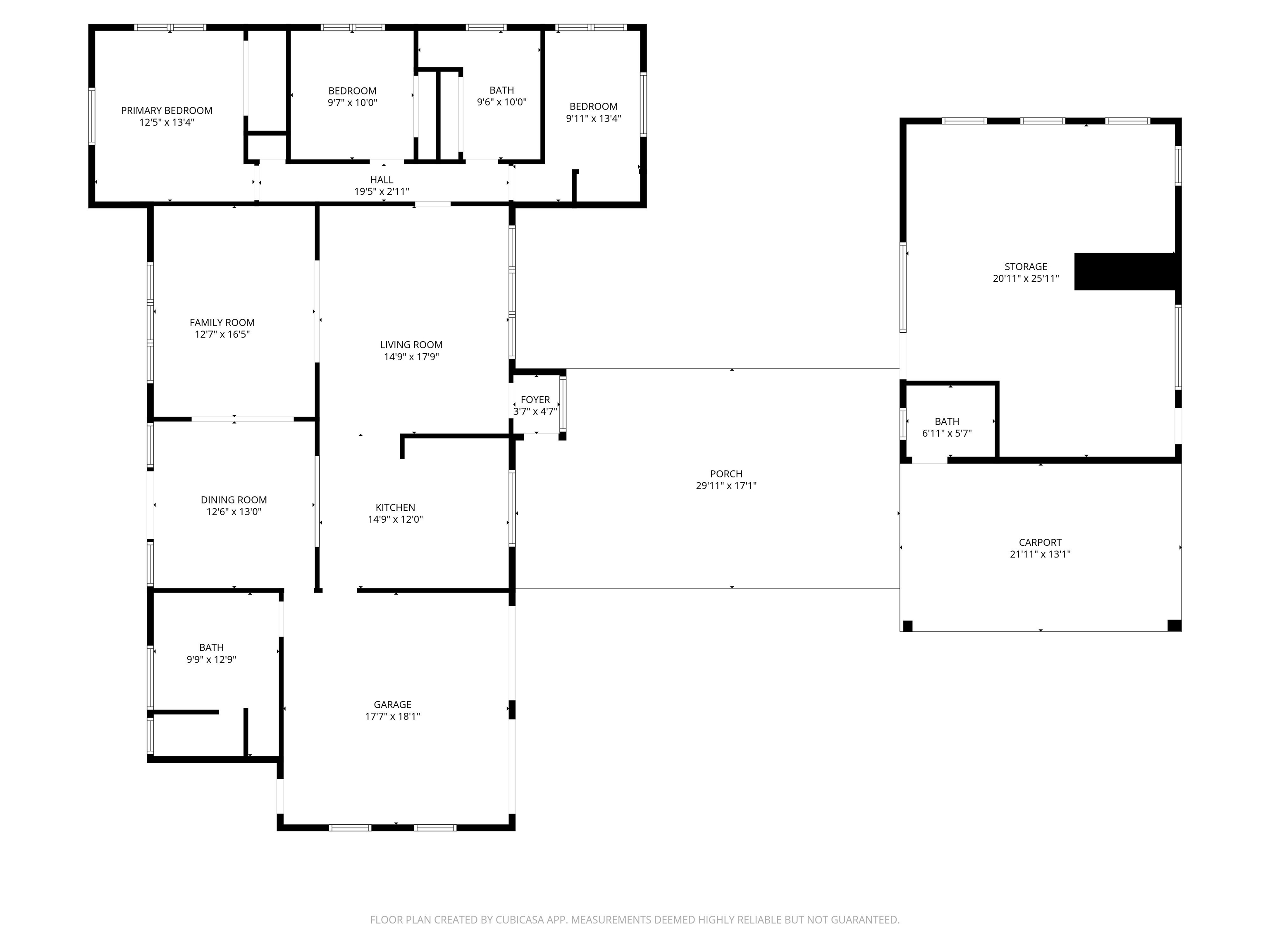
Welcome to 1199 Freitas Place in Makawao town – a well-cared-for home that combines functional design with classic island living. This is truly one of the best values in Makawao on a $/sf basis! The property features a 1635 square foot, 3-bed/2-bath main residence and a 667 square foot detached Ohana. Both structures are situated on a lush 0.39 acre corner lot with established fruit trees and versatile outdoor spaces. The main home has been freshly repainted and maintained with great attention to detail. Its thoughtful layout provides a welcoming atmosphere with space for relaxation and entertaining. The separate Ohana, previously used as a hair salon, offers an open floor plan ready to be tailored to your needs – whether as an additional living area, creative workspace, or guest suite. The fenced-in yard showcases a diverse fruit orchard featuring mountain apples, oranges, tangerines, lemons, limes, bananas, peaches, curry leaf, Suriname cherries, ginger and turmeric. Additional structures include a workspace and storage shed, offering flexibility for hobbies or projects, an ocean view deck for relaxing or sunset dinners, and a large generator to keep the home fully powered during outages. The dryer, cooktop and oven are all gas powered. Owners average electric bill has been less than $100/month! Located within walking distance of Makawao Town and Makawao Elementary School, you’ll enjoy the convenience of local shops, dining, and community events, all while feeling tucked away in your own private oasis. This is a property that’s been genuinely cared for, offering a lifestyle that blends nature, creativity, and Maui comfort.
1199 Freitas Pl Makawao 96768 is listed Courtesy of Compass-W
Congratulations, you have access to Hawaii's most comprehensive Real Estate Search! Please help us to better serve you by answering these optional questions.
This email is already registered. Click the button below and we'll send you a link to reset your password.
You have already registered using your FB account.
Check your inbox for an email from brokersmls@locationshawaii.com. It contains a link to reset your password.
The agent who gave you access to this website is no longer with Locations LLC.
Due to local MLS regulations, you will need to re-register if you would like to continue your access.
We will pre-fill the registration form with information in our files. Once you click Register you can either select a new agent or one will be assigned for you.
Sorry for the inconvenience, Locations LLC.
Request an appointment to view this property by completing the information below. Please note your appointment is not confirmed until an agent calls you.
Disclaimer: The properties we may show you may be Locations LLC listings or listings of other brokerage firms. Professional protocol requires agent to set up an appointment with the listings agent to show a property. Locations, LLC may only show properties marked "Active" and "ACS".
Keep your eye on this property! Save this listing and receive e-mail updates if the status of the property changes.
Share this property by completing the the form below. Your friend will receive an e-mail from you with a link to view the details of this property.
Send a message and we'll respond shortly.
We will not rent, share, or sell your information. Privacy Policy.