Hawaii's most accurate home valuation tool.
Start Tracking your home's value today!
Start Tracking your home's value today!
Are you interested in a real estate career in Hawaii?
Condo
in
Napili/Kahana/Honokowai - West Maui
Maui
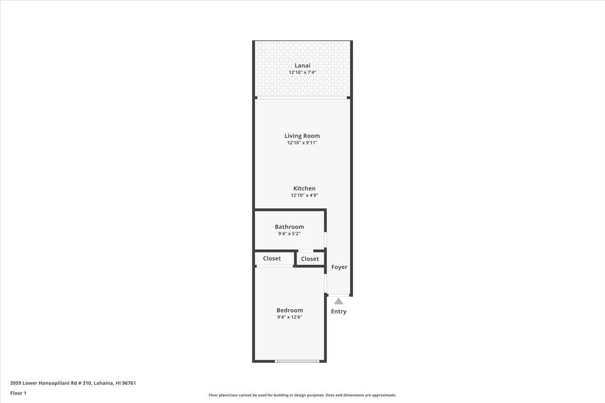
Oceanview Island Retreat at Kuleana - Modern 1BD/1BA 2nd-floor condo with 493 sq ft, thoughtfully remodeled in island-inspired style. Enjoy ocean and Moloka‘i views overlooking the pool, with a private lanai perfect for sunsets. Turnkey furnished, with curated décor, large slider windows, storage, and 1 parking stall. The Kuleana Resort offers a serene, low-density atmosphere with resort-style amenities, direct ocean access and convenient proximity to Kaanapali & Kapalua beaches, dining, golf, and activities. Whether you’re searching for a personal island getaway, or second home, this Kuleana condo delivers the perfect blend of modern design, lifestyle, convenience and value. Don’t miss this opportunity–schedule your private showing today.
3959 Lower Honoapiilani Rd 310 Lahaina 96761 is listed Courtesy of Hawaii Life (L) Cell: 808-280-4881
Congratulations, you have access to Hawaii's most comprehensive Real Estate Search! Please help us to better serve you by answering these optional questions.
This email is already registered. Click the button below and we'll send you a link to reset your password.
You have already registered using your FB account.
Check your inbox for an email from brokersmls@locationshawaii.com. It contains a link to reset your password.
The agent who gave you access to this website is no longer with Locations LLC.
Due to local MLS regulations, you will need to re-register if you would like to continue your access.
We will pre-fill the registration form with information in our files. Once you click Register you can either select a new agent or one will be assigned for you.
Sorry for the inconvenience, Locations LLC.
Request an appointment to view this property by completing the information below. Please note your appointment is not confirmed until an agent calls you.
Disclaimer: The properties we may show you may be Locations LLC listings or listings of other brokerage firms. Professional protocol requires agent to set up an appointment with the listings agent to show a property. Locations, LLC may only show properties marked "Active" and "ACS".
Keep your eye on this property! Save this listing and receive e-mail updates if the status of the property changes.
Share this property by completing the the form below. Your friend will receive an e-mail from you with a link to view the details of this property.
Send a message and we'll respond shortly.
We will not rent, share, or sell your information. Privacy Policy.