Hawaii's most accurate home valuation tool.
Start Tracking your home's value today!
Start Tracking your home's value today!
Are you interested in a real estate career in Hawaii?
Vacant Land
in
Waikii Ranch - South Kohala
Hawaii
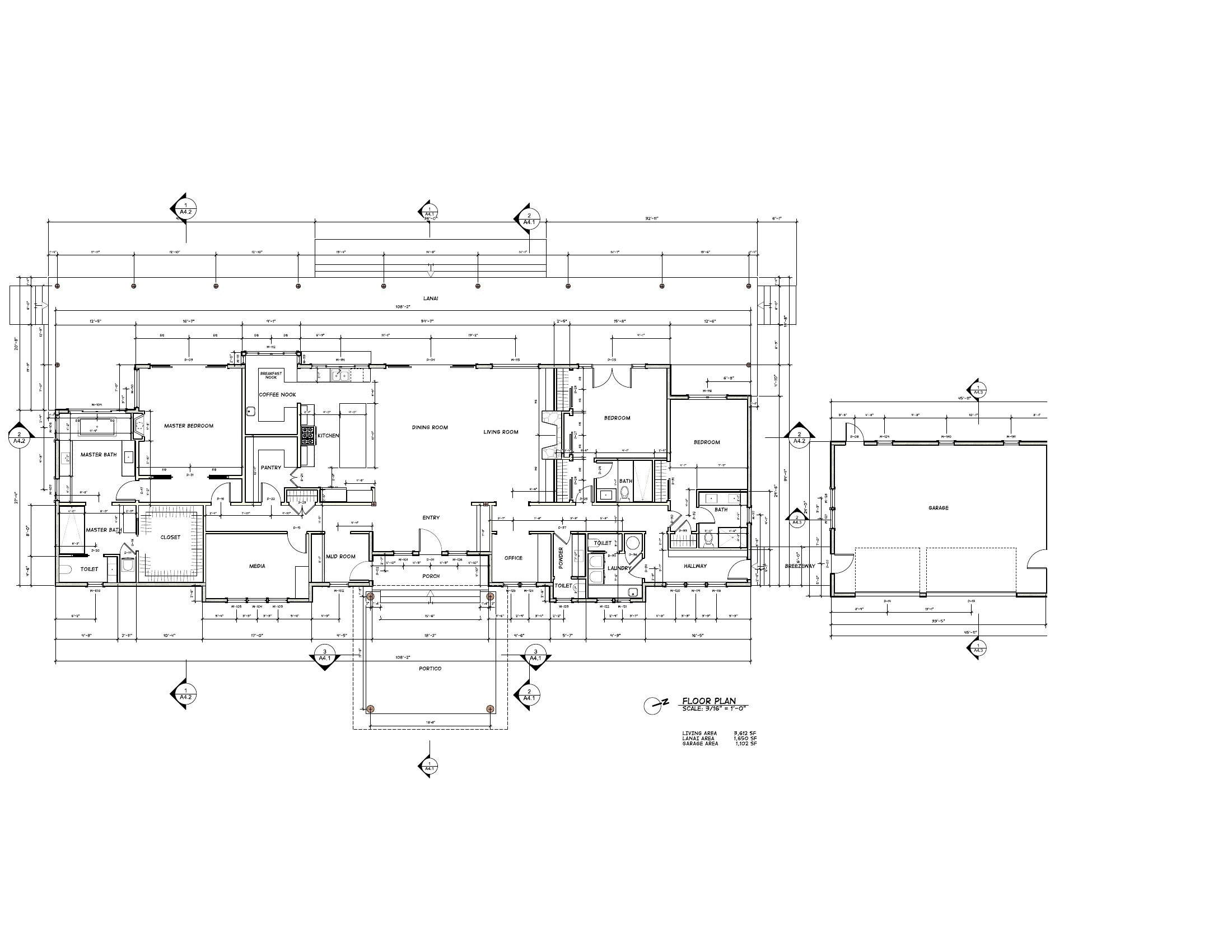
Build your dream home in the highly desirable Waiki‘i Ranch, a private gated equestrian community on Hawai‘i Island. This exceptional 10-acre parcel offers sweeping mountain views, distant ocean vistas, cool Waimea breezes, and the perfect balance of privacy, open space, and natural beauty. What truly sets this property apart is that it includes fully completed architectural and engineering plans that have already received final approval from the Waiki‘i Ranch Association–saving the next owner significant time, cost, and effort while allowing for a more seamless path to construction. Adding even more value, the property is owned by a general contractor who is available to build for the new owner, offering a streamlined and efficient building experience. Buyers will have the opportunity to customize interior finishes such as flooring, cabinetry, and countertops, allowing you to tailor the home to your personal style. Lot 101 provides ample space for a custom residence, outdoor living areas, and equestrian or agricultural use, consistent with Waiki‘i Ranch’s ranch-style lifestyle. Enjoy wide open skies, star-filled nights, and a peaceful upcountry setting, all just a short drive to Waimea’s shops, restaurants, and top-rated schools. Community amenities include a private clubhouse, tennis, racquetball, and pickleball courts, equestrian facilities with riding arena and trails, the island’s only polo field with seasonal weekend matches, a fitness center, gated entry with security, well-maintained roads, a private water system sourced from a pristine aquifer, and expansive common pastureland. Don’t miss this rare opportunity to fast-track your build in one of the Big Island’s most sought-after communities. Property video: https://player.vimeo.com/video/1180535982
67-1009 Keamuku Rd Kamuela 96743 is listed Courtesy of Exp Realty
Congratulations, you have access to Hawaii's most comprehensive Real Estate Search! Please help us to better serve you by answering these optional questions.
This email is already registered. Click the button below and we'll send you a link to reset your password.
You have already registered using your FB account.
Check your inbox for an email from brokersmls@locationshawaii.com. It contains a link to reset your password.
The agent who gave you access to this website is no longer with Locations LLC.
Due to local MLS regulations, you will need to re-register if you would like to continue your access.
We will pre-fill the registration form with information in our files. Once you click Register you can either select a new agent or one will be assigned for you.
Sorry for the inconvenience, Locations LLC.
Request an appointment to view this property by completing the information below. Please note your appointment is not confirmed until an agent calls you.
Disclaimer: The properties we may show you may be Locations LLC listings or listings of other brokerage firms. Professional protocol requires agent to set up an appointment with the listings agent to show a property. Locations, LLC may only show properties marked "Active" and "ACS".
Keep your eye on this property! Save this listing and receive e-mail updates if the status of the property changes.
Share this property by completing the the form below. Your friend will receive an e-mail from you with a link to view the details of this property.
Send a message and we'll respond shortly.
We will not rent, share, or sell your information. Privacy Policy.