Hawaii's most accurate home valuation tool.
Start Tracking your home's value today!
Start Tracking your home's value today!
Are you interested in a real estate career in Hawaii?
Vacant Land in Pacific Paradise Mountain View Manor - Puna Hawaii
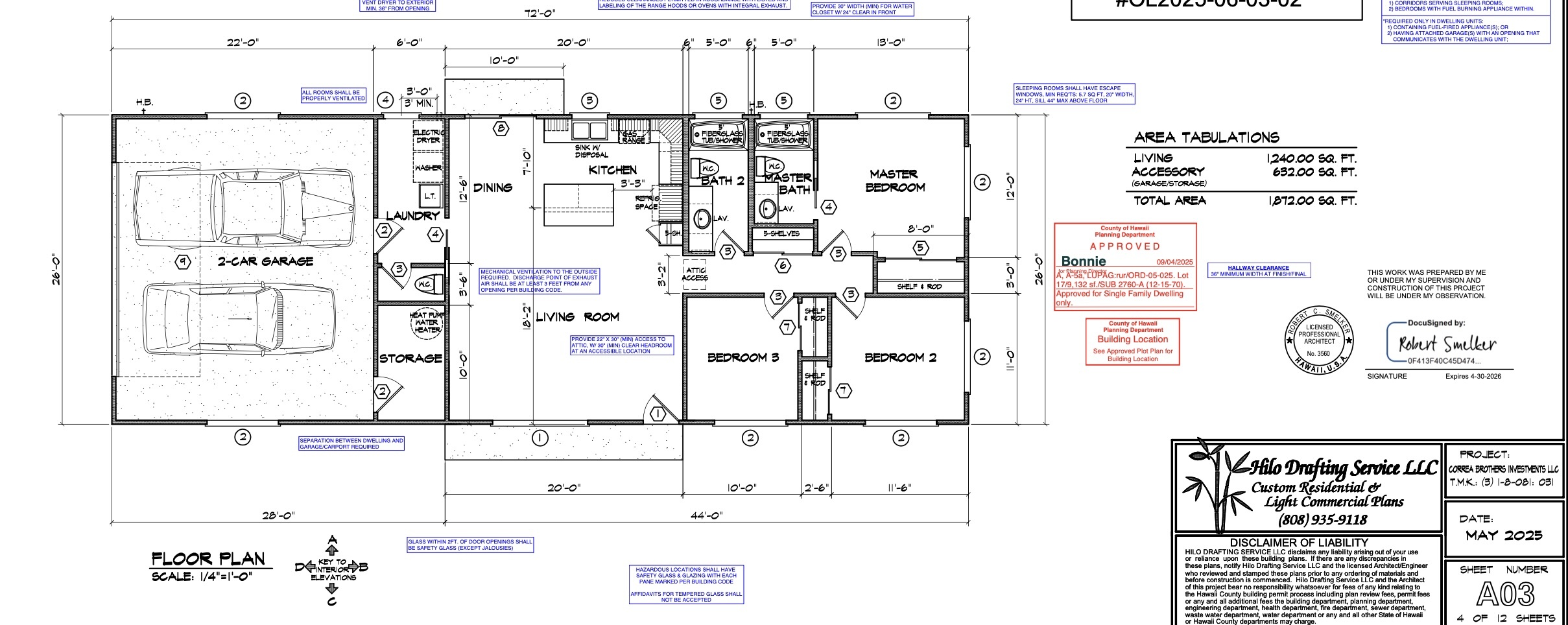
Rare opportunity to fast-track your new home build in up and coming PPMVM! This vacant lot at 18-4104 Hohiu St. comes with approved building plans for a thoughtfully designed 3-bedroom, 2.5-bathroom home with a 2-car garage. Save valuable time and move forward with confidence–plans are already approved, helping you avoid the lengthy design and permitting process. The proposed layout offers modern functionality with an open-concept living area, primary suite, and convenient half bath for guests. The attached 2-car garage provides ample space for vehicles, storage, or workshop use. Whether you're ready to build your primary residence, a second home, or an investment property, this is a prime opportunity to get started right away. Information herein deemed reliable but not guaranteed. Buyer and Buyers Agent to do their own due diligence of all pertinent facts.
18-4104 Hohiu St Mountain View 96771 is listed Courtesy of Better Homes And Gardens Real Estate Hank Correa Realty
Congratulations, you have access to Hawaii's most comprehensive Real Estate Search! Please help us to better serve you by answering these optional questions.
This email is already registered. Click the button below and we'll send you a link to reset your password.
You have already registered using your FB account.
Check your inbox for an email from brokersmls@locationshawaii.com. It contains a link to reset your password.
The agent who gave you access to this website is no longer with Locations LLC.
Due to local MLS regulations, you will need to re-register if you would like to continue your access.
We will pre-fill the registration form with information in our files. Once you click Register you can either select a new agent or one will be assigned for you.
Sorry for the inconvenience, Locations LLC.
Request an appointment to view this property by completing the information below. Please note your appointment is not confirmed until an agent calls you.
Disclaimer: The properties we may show you may be Locations LLC listings or listings of other brokerage firms. Professional protocol requires agent to set up an appointment with the listings agent to show a property. Locations, LLC may only show properties marked "Active" and "ACS".
Keep your eye on this property! Save this listing and receive e-mail updates if the status of the property changes.
Share this property by completing the the form below. Your friend will receive an e-mail from you with a link to view the details of this property.
Send a message and we'll respond shortly.
We will not rent, share, or sell your information. Privacy Policy.