Hawaii's most accurate home valuation tool.
Start Tracking your home's value today!
Start Tracking your home's value today!
Are you interested in a real estate career in Hawaii?
Vacant Land in Kehena Beach Estates - Puna Hawaii
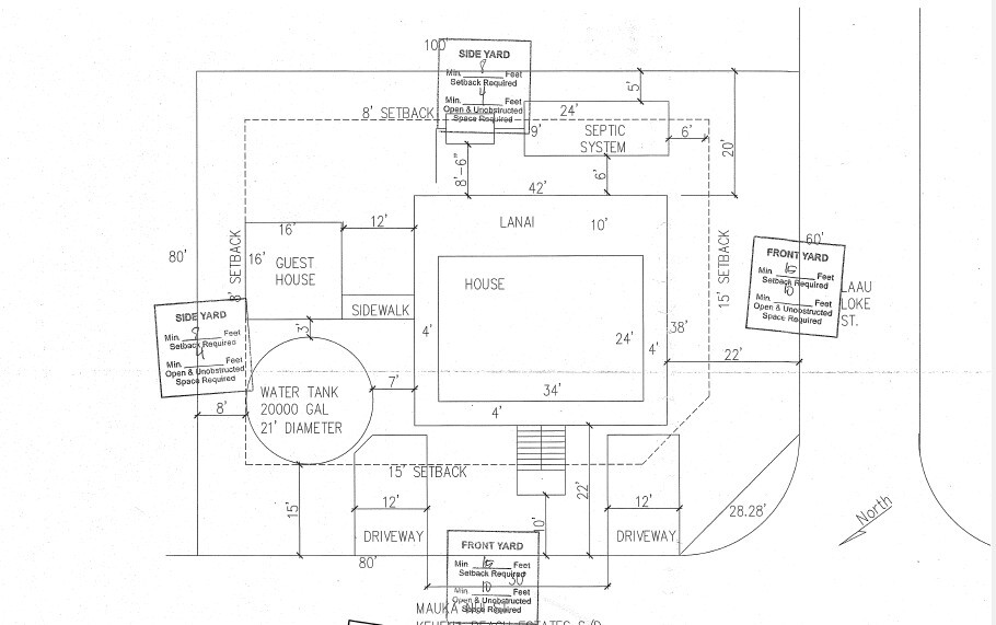
Improved Corner Lot — Ready to Build in Kehena Beach Estates Don’t miss this exceptional opportunity to build in the desirable Kehena Beach Estates community. This improved 7,914 sq ft corner lot is fully prepared for construction, offering approved building plans, a permitted septic system already installed, and a cleared homesite finished with cinder and rock for a solid foundation. Ideally located at the corner of Mauka Nui Street and Laau Loke Street, the planned two-story residence is thoughtfully designed to capture beautiful garden views and stunning treetop vistas from the second floor. The flexible layout allows for two separate living areas, providing excellent versatility. Property was staked at the four corners prior to improving the lot. Approved house and septic plans will be transferred to the new owner. Proposed Floor Plan Highlights Main Residence: Two stories 2 bedrooms | 2 bathrooms 1,140 sq ft of interior living space 2,052 sq ft of covered accessory/lanai areas Detached Guest Cottage: 1 bedroom | 1 bathroom 208 sq ft interior 48 sq ft lanai This adaptable design supports a variety of uses, including a private primary residence, one or two long-term rentals, or a hosted vacation rental. (See attached floor plan for details.) Designed with tropical living in mind, the home emphasizes indoor-outdoor flow and generous covered spaces. Kehena Beach is just minutes away, offering year-round swimming and frequent sightings of sea turtles, dolphins, and seasonal whales. Residents enjoy breathtaking Pacific sunrises and refreshing trade winds throughout the year. The town of Pahoa is approximately 20 minutes away, with convenient access to shopping, dining, and essential services. With its sunny climate, prime corner location, and extensive improvements already in place, this ready-to-build property presents a rare opportunity to create your island retreat.
12-7211 Mauka Nui St Pahoa 96778 is listed Courtesy of Hilo Bay Realty Llc
Congratulations, you have access to Hawaii's most comprehensive Real Estate Search! Please help us to better serve you by answering these optional questions.
This email is already registered. Click the button below and we'll send you a link to reset your password.
You have already registered using your FB account.
Check your inbox for an email from brokersmls@locationshawaii.com. It contains a link to reset your password.
The agent who gave you access to this website is no longer with Locations LLC.
Due to local MLS regulations, you will need to re-register if you would like to continue your access.
We will pre-fill the registration form with information in our files. Once you click Register you can either select a new agent or one will be assigned for you.
Sorry for the inconvenience, Locations LLC.
Request an appointment to view this property by completing the information below. Please note your appointment is not confirmed until an agent calls you.
Disclaimer: The properties we may show you may be Locations LLC listings or listings of other brokerage firms. Professional protocol requires agent to set up an appointment with the listings agent to show a property. Locations, LLC may only show properties marked "Active" and "ACS".
Keep your eye on this property! Save this listing and receive e-mail updates if the status of the property changes.
Share this property by completing the the form below. Your friend will receive an e-mail from you with a link to view the details of this property.
Send a message and we'll respond shortly.
We will not rent, share, or sell your information. Privacy Policy.