Hawaii's most accurate home valuation tool.
Start Tracking your home's value today!
Start Tracking your home's value today!
Are you interested in a real estate career in Hawaii?
Single Family Home in Hawaiian Shores Subdivision - Puna Hawaii
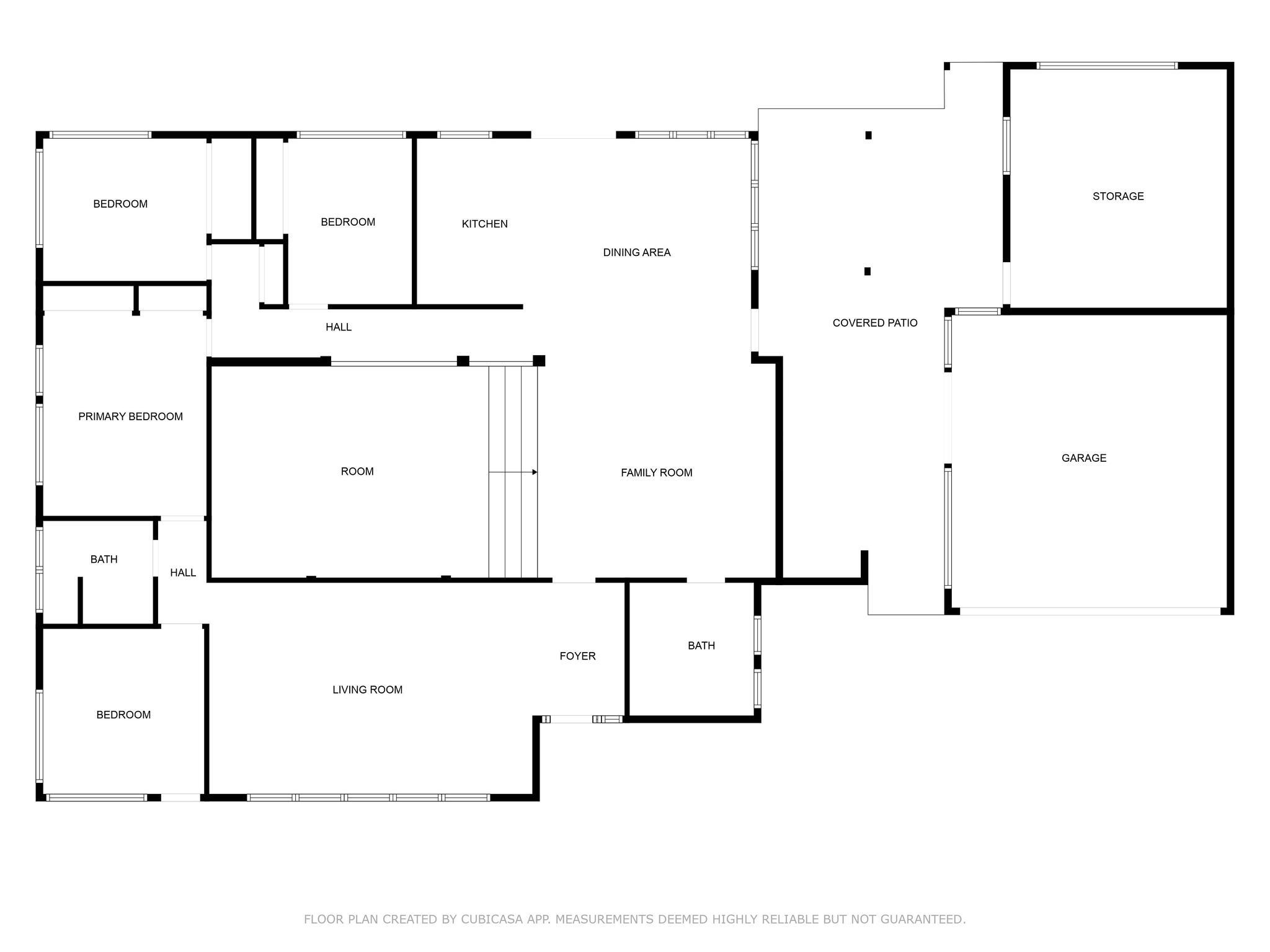
This charming 4-bedroom, 2-bathroom home situated in the Hawaiian Shores subdivision has 2,432 square feet of interior living space and sits on a large 20,007-square-foot lot. The home features 9-foot ceilings, AC units in each bedroom and main living area, an additional living/entertaining space and atrium. The sunken atrium features a lava rock accent wall and skylight. The kitchen is equipped with stainless appliances including a refrigerator, dishwasher, range, and microwave. The 4th bedroom has a separate exterior entrance. The property is fully fenced with two entry gates to the property. There is a two vehicle carport and a large workshop/storage room. There are several fruiting trees included: Ulu, soursop, durian, jaboticaba, avocado, mountain apple, cacao, coconut palms, orange, papaya and pineapples. House is being sold partially furnished.
Hawaiian Shores has paved roads, mail delivery and a private water system (no catchment!) and no HOA fees or CC&R's. This property is located in lava zone 2. Home was fumigated in April 2021 and is under warranty through April 2025.
15-807 Kahakai Blvd Pahoa 96778 is listed Courtesy of Hawaii Life
Congratulations, you have access to Hawaii's most comprehensive Real Estate Search! Please help us to better serve you by answering these optional questions.
This email is already registered. Click the button below and we'll send you a link to reset your password.
You have already registered using your FB account.
Check your inbox for an email from brokersmls@locationshawaii.com. It contains a link to reset your password.
The agent who gave you access to this website is no longer with Locations LLC.
Due to local MLS regulations, you will need to re-register if you would like to continue your access.
We will pre-fill the registration form with information in our files. Once you click Register you can either select a new agent or one will be assigned for you.
Sorry for the inconvenience, Locations LLC.
Request an appointment to view this property by completing the information below. Please note your appointment is not confirmed until an agent calls you.
Disclaimer: The properties we may show you may be Locations LLC listings or listings of other brokerage firms. Professional protocol requires agent to set up an appointment with the listings agent to show a property. Locations, LLC may only show properties marked "Active" and "ACS".
Keep your eye on this property! Save this listing and receive e-mail updates if the status of the property changes.
Share this property by completing the the form below. Your friend will receive an e-mail from you with a link to view the details of this property.
Send a message and we'll respond shortly.
We will not rent, share, or sell your information. Privacy Policy.