Hawaii's most accurate home valuation tool.
Start Tracking your home's value today!
Start Tracking your home's value today!
Are you interested in a real estate career in Hawaii?
Single Family Home
in
Hawaiian Paradise Park - Puna
Hawaii
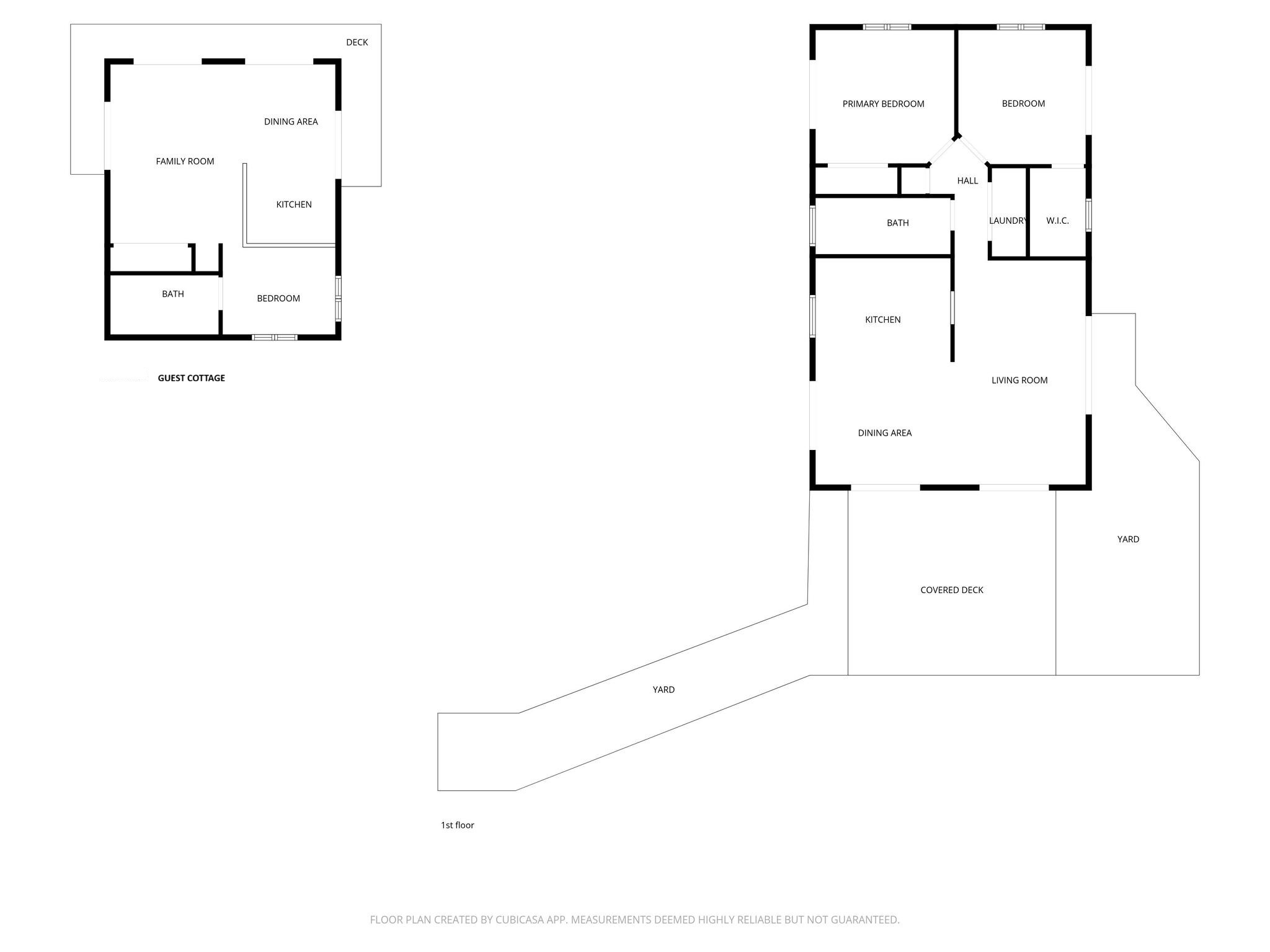
Motivated Seller and New Price Improvement! Rare and Peaceful feeling 2 Dwelling Property in Lower Hawaiian Paradise Park, Keaau Hawaii! Offering 3 potential rooms for sleeping! Watch Video: https://show.tours/v/GPv7VD7 Privately set back from the road, this unique property offers 2 separate dwellings surrounded by lush greenery, bamboo, and tranquil water features. Primary dwelling offers 2 Bedrooms, 1 Bathroom, Kitchen and Lanai. Guest cottage has studio style setup and 1 Bathroom. Ideal for multi-generational living or rental potential in one of the most desirable areas of Hawaiian Paradise Park. Property Highlights: * 2 Dwellings with Living sqft each approximately 949 and 480 * Total Living 1429sqft approximate * High Vaulted Ceilings * Wood Accents * Tile Flooring throughout * Spacious Lanai * Multi-Generational Friendly * Rental Income Potential * Privately Setback from Road * Lush Greenery & Bamboo * Two Ponds * Pond and Garden Views! * Gas Cooking Range (2nd unit) * 1 Acre of Land * Located in Lower Down HPP in the Sunny Belt! * Hawaii has Real Property Tax Exemptions for Primary Homeowners and they offer other Exemptions, please contact the Hawaii Real Property Tax office for more details. Whether you’re seeking a family compound, income opportunity, or private tropical retreat, this property delivers flexibility, beauty, and rare privacy. Peaceful, private, and truly one-of-a-kind. 15-1546 2nd ave, Keaau HI 96749 ~ MLS 726873
15-1546 2Nd Ave Keaau 96749 is listed Courtesy of Coldwell Banker Island Properties - Hilo
Congratulations, you have access to Hawaii's most comprehensive Real Estate Search! Please help us to better serve you by answering these optional questions.
This email is already registered. Click the button below and we'll send you a link to reset your password.
You have already registered using your FB account.
Check your inbox for an email from brokersmls@locationshawaii.com. It contains a link to reset your password.
The agent who gave you access to this website is no longer with Locations LLC.
Due to local MLS regulations, you will need to re-register if you would like to continue your access.
We will pre-fill the registration form with information in our files. Once you click Register you can either select a new agent or one will be assigned for you.
Sorry for the inconvenience, Locations LLC.
Request an appointment to view this property by completing the information below. Please note your appointment is not confirmed until an agent calls you.
Disclaimer: The properties we may show you may be Locations LLC listings or listings of other brokerage firms. Professional protocol requires agent to set up an appointment with the listings agent to show a property. Locations, LLC may only show properties marked "Active" and "ACS".
Keep your eye on this property! Save this listing and receive e-mail updates if the status of the property changes.
Share this property by completing the the form below. Your friend will receive an e-mail from you with a link to view the details of this property.
Send a message and we'll respond shortly.
We will not rent, share, or sell your information. Privacy Policy.