Hawaii's most accurate home valuation tool.
Start Tracking your home's value today!
Start Tracking your home's value today!
Are you interested in a real estate career in Hawaii?
Vacant Land in Hawaiian Beaches Subdivision - Puna Hawaii
ACCEPTING BACK UP OFFERS
Peaceful location at the end of the street, where you can hear the waves in the distance.
This 10,064 sq ft lot provides ample space to build your dream home
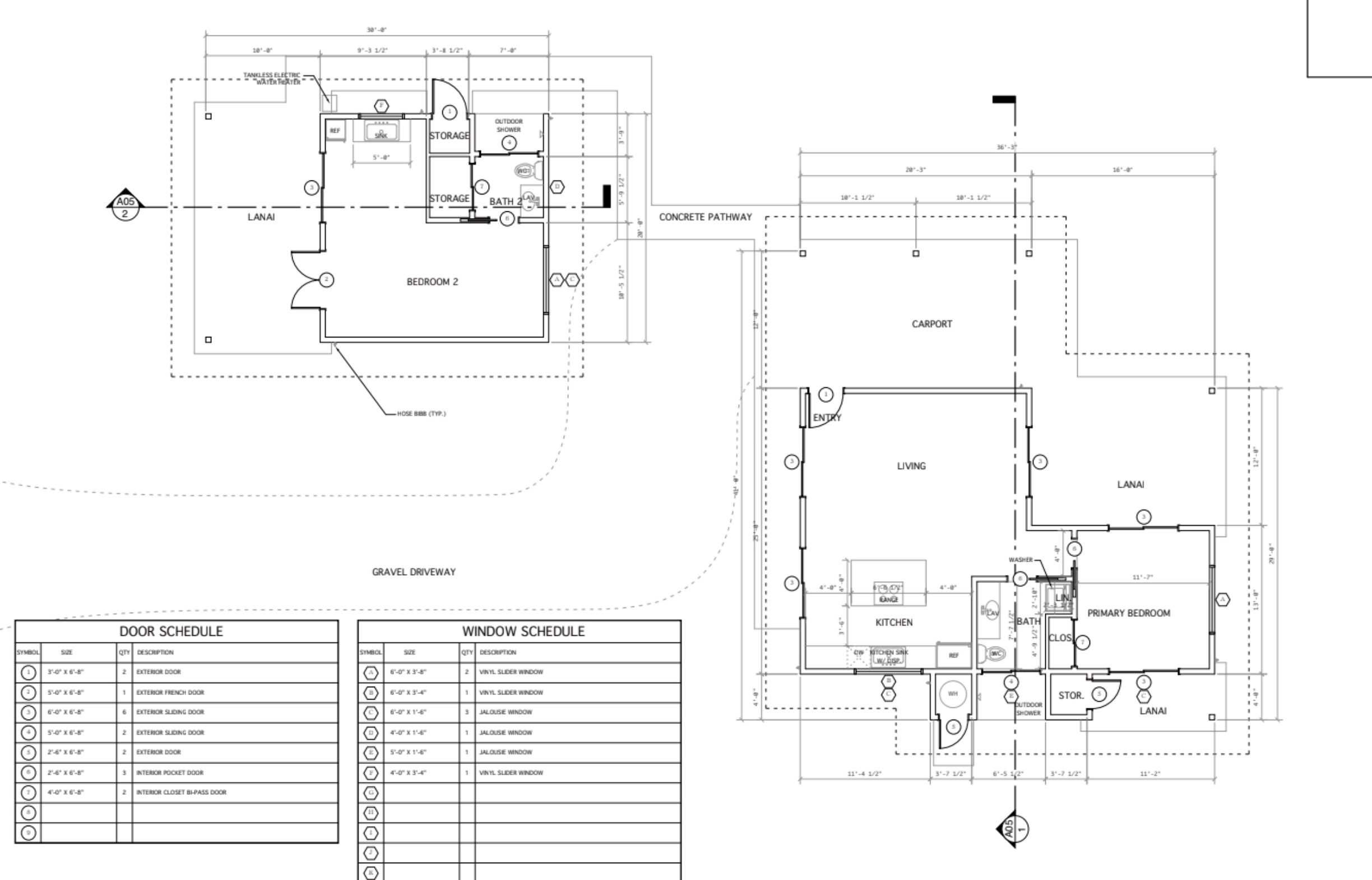
Price includes house plans for: New 1 bedroom, 1 bathroom single family dwelling with detached 1 bedroom 1 bathroom on concrete slab foundation with solar panel on roof, county water, and septic system. Entry into living/kitchen (refrigerator, sink with disposal, dishwasher, island with range), bathroom (lavatory, water closet, outdoor shower, washer), bedroom with lanai and storage. Exterior closet with water heater enclosed. Detached bedroom (refrigerator, sink), bathroom (lavatory, water closet, outdoor shower). Exterior storage. Tankless water heater exterior of bedroom #2. Stamped by Architect
Located in Hawaiian Beaches Subdivision, this community features paved county roads, private water service (no catchment needed), mail delivery, overhead electricity, cable, high-speed internet, and telephone.
No HOA or CC&Rs
Short drive to Pahoa town, you'll have easy access to restaurants, grocery stores, shops, gas stations, schools, and the brand-new Puna Kai Shopping Center. Pahoa blends small-town charm with modern conveniences, making it a popular hub for residents in the Puna District.
The information herein, while deemed reliable may contain inaccuracies or be incorrect and is provided without warranty or guarantee of any kind. Buyer and buyer's agent to perform own due diligence to investigate and confirm all pertinent and material facts pertaining to the property, county permits, and house plans.
15-2677 Opelu St Pahoa 96778 is listed Courtesy of Exp Realty
Congratulations, you have access to Hawaii's most comprehensive Real Estate Search! Please help us to better serve you by answering these optional questions.
This email is already registered. Click the button below and we'll send you a link to reset your password.
You have already registered using your FB account.
Check your inbox for an email from brokersmls@locationshawaii.com. It contains a link to reset your password.
The agent who gave you access to this website is no longer with Locations LLC.
Due to local MLS regulations, you will need to re-register if you would like to continue your access.
We will pre-fill the registration form with information in our files. Once you click Register you can either select a new agent or one will be assigned for you.
Sorry for the inconvenience, Locations LLC.
Request an appointment to view this property by completing the information below. Please note your appointment is not confirmed until an agent calls you.
Disclaimer: The properties we may show you may be Locations LLC listings or listings of other brokerage firms. Professional protocol requires agent to set up an appointment with the listings agent to show a property. Locations, LLC may only show properties marked "Active" and "ACS".
Keep your eye on this property! Save this listing and receive e-mail updates if the status of the property changes.
Share this property by completing the the form below. Your friend will receive an e-mail from you with a link to view the details of this property.
Send a message and we'll respond shortly.
We will not rent, share, or sell your information. Privacy Policy.