Hawaii's most accurate home valuation tool.
Start Tracking your home's value today!
Start Tracking your home's value today!
Are you interested in a real estate career in Hawaii?
Single Family Home
in
Makalei Estates - North Kona
Hawaii
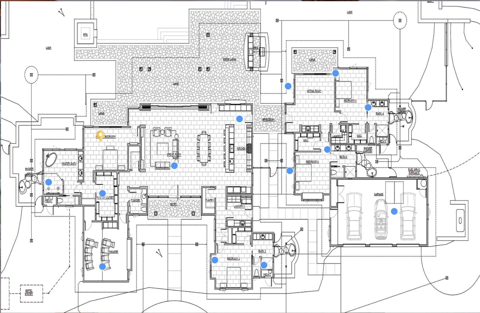
Modern Luxury Awaits at Makalei Estates/ Under construction Unrivaled Customization Meets Island Elegance Seize the rare opportunity to own a masterfully designed contemporary estate in the prestigious Phase II of Makalei Estates. Currently under construction, this 5,800 sq. ft. sanctuary offers a sophisticated floor plan blending architectural boldness with the beauty of the Kona Coast. By securing this residence now, the buyer is invited to collaborate on the selection of final finishes, ensuring the home is a bespoke reflection of their personal style. Sophisticated Living Spaces: Grand Interior: Boasting 4 expansive bedrooms and 4.5 spa-inspired baths, the home is divided into a magnificent Main House and a private Guest Wing. Entertainment Hub: Transition from a day in the sun to an evening in your professional-grade Theater Room, designed for ultimate cinematic immersion. Culinary Excellence: A chef’s kitchen featuring a massive island and high-end cabinetry flows seamlessly into the Great Room. The Ultimate Outdoor Oasis: Infinity Living: Step outside to a world-class infinity-edge pool and spa, meticulously positioned to offer unobstructed, panoramic ocean views. Expansive Lanais: Enjoy 2,500 sq. ft. of covered lanai space, including dedicated dining and lounging zones perfect for Kona’s famous sunsets. Masterful Landscaping: The property is anchored by extensive, hand-crafted lava rock retaining walls and an expansive, level yard that maximizes the 3.3-acre lot. Premium Infrastructure Spacious Storage: An oversized 3-car garage provides ample room for vehicles and island toys. Artful Engineering: From the gated entry to the detailed masonry, every inch of this Lot 20 estate reflects the highest standards of modern engineering and design. Don't just buy a home–design your lifestyle. Contact us today to review the permit plans and begin selecting the finishes for your North Kona dream estate.
72-4067 Ke Ana Wai St Kailua Kona 96740 is listed Courtesy of Coldwell Banker Island Properties - Kona
Congratulations, you have access to Hawaii's most comprehensive Real Estate Search! Please help us to better serve you by answering these optional questions.
This email is already registered. Click the button below and we'll send you a link to reset your password.
You have already registered using your FB account.
Check your inbox for an email from brokersmls@locationshawaii.com. It contains a link to reset your password.
The agent who gave you access to this website is no longer with Locations LLC.
Due to local MLS regulations, you will need to re-register if you would like to continue your access.
We will pre-fill the registration form with information in our files. Once you click Register you can either select a new agent or one will be assigned for you.
Sorry for the inconvenience, Locations LLC.
Request an appointment to view this property by completing the information below. Please note your appointment is not confirmed until an agent calls you.
Disclaimer: The properties we may show you may be Locations LLC listings or listings of other brokerage firms. Professional protocol requires agent to set up an appointment with the listings agent to show a property. Locations, LLC may only show properties marked "Active" and "ACS".
Keep your eye on this property! Save this listing and receive e-mail updates if the status of the property changes.
Share this property by completing the the form below. Your friend will receive an e-mail from you with a link to view the details of this property.
Send a message and we'll respond shortly.
We will not rent, share, or sell your information. Privacy Policy.