Hawaii's most accurate home valuation tool.
Start Tracking your home's value today!
Start Tracking your home's value today!
Are you interested in a real estate career in Hawaii?
Single Family Home
in
Kapahulu - Diamond Head
Oahu
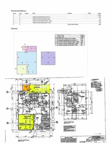
LOCATION, LOCATION, LOCATION! Located very near Waikiki Beach - walking distance to Kapiolani Park, Zoo & Waikiki Shell. Lakimau Street is SPECIAL. Original floor plan: SPLIT LEVEL, 5 bdrm, 4 bath w/2,406 sf; RE-MODELED into four separate units. Originally designed for extended family living w/separate entrances. 1st floor: kitchen, living rm, 3 bdrm, 3 bath. 2nd floor: wetbar, family rm, 4th bdrm, primary bedroom & 1 bath with an interior and exterior stairs. This versatile floor CONVERTED into 4 separate rental units in 2019. UP level: 2 bdrm/1 bath w/KITCHEN-designated as Unit #2 (800 sf). DOWN levels: Unit #1 w/KITCHEN, Units #3 & #4 each has a wet bar sink & bath. Split A/C in all units. A community washer/dryer in the covered lanai-256 sf. This lanai has 4 detached storage rooms. Property set up for low maintenance. See Good-to-Know Information in Supplement File. See floor plan copy in photo file. Offer(s) due on Tuesday, December 16 @ 2 PM. *****The 2 bdrm/1 bath UP-2nd floor Unit #2 could be a legal ADU unit (maybe); subject to DP&P approval. See 'rent rolls' in Good-to-Know Supplement. ****** 2nd Open House on 12/14: 2:00 to 5:00 pm.
3024 Lakimau Street Honolulu 96815 is listed Courtesy of Locations Llc (808) 735-4200
Congratulations, you have access to Hawaii's most comprehensive Real Estate Search! Please help us to better serve you by answering these optional questions.
This email is already registered. Click the button below and we'll send you a link to reset your password.
You have already registered using your FB account.
Check your inbox for an email from brokersmls@locationshawaii.com. It contains a link to reset your password.
The agent who gave you access to this website is no longer with Locations LLC.
Due to local MLS regulations, you will need to re-register if you would like to continue your access.
We will pre-fill the registration form with information in our files. Once you click Register you can either select a new agent or one will be assigned for you.
Sorry for the inconvenience, Locations LLC.
Request an appointment to view this property by completing the information below. Please note your appointment is not confirmed until an agent calls you.
Disclaimer: The properties we may show you may be Locations LLC listings or listings of other brokerage firms. Professional protocol requires agent to set up an appointment with the listings agent to show a property. Locations, LLC may only show properties marked "Active" and "ACS".
Keep your eye on this property! Save this listing and receive e-mail updates if the status of the property changes.
Share this property by completing the the form below. Your friend will receive an e-mail from you with a link to view the details of this property.
Send a message and we'll respond shortly.
We will not rent, share, or sell your information. Privacy Policy.